Excellent Magazine werkt intensief samen met Baerz & Co Luxury Homes International, het trefpunt waar exclusieve huizen en veeleisende kopers samenkomen. Hieronder vindt u een geselecteerd aanbod van de meest exclusieve huizen op alle hot-spots in 20 landen rond de Middellandse zee, de Alpen, Mexico en Dubai.

VENLO
Monseigneur Boermansstraat 11 - 5911 BA
Nederland

Don Willems profile image
Don Willems
Makelaar
€898.750 k.k.
Woonoppervlakte
225m2
Perceeloppervlakte
240m2
Slaapkamers
5

Omschrijving

Stijlvol herenhuis uit 1926 met een diepe achtertuin met verwarmd zwembad en een prachtige ligging in hartje centrum aan het Rosarium!

Dit royale en karakteristieke herenhuis ligt op een toplocatie. Met drie woonverdiepingen combineert het ruimte, comfort en charme. De woning ligt op zeer korte loopafstand van het centrum van Venlo. Bovendien geniet je vanuit de woning van een mooi uitzicht op Het Rosarium.

De woning biedt onder andere een grote woonkamer, vier slaapkamers (mogelijk vijf) en twee badkamers, waardoor dit huis perfect is voor een groot gezin of voor wie graag extra leefruimte of een thuiswerkplek heeft. De omheinde diepe onder architectuur aangelegde achtertuin met zwembad biedt veel rust en ruimte.

Een bijzonder ruime en karateristieke woning op een van de mooiste locaties van Venlo. Ideaal voor wie luxe wonen wil combineren met het gemak van alle voorzieningen om de hoek!
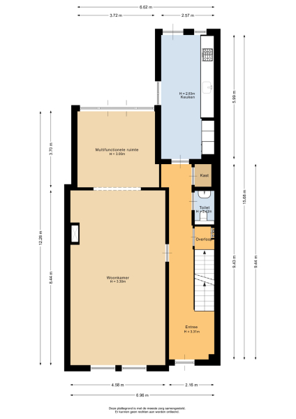
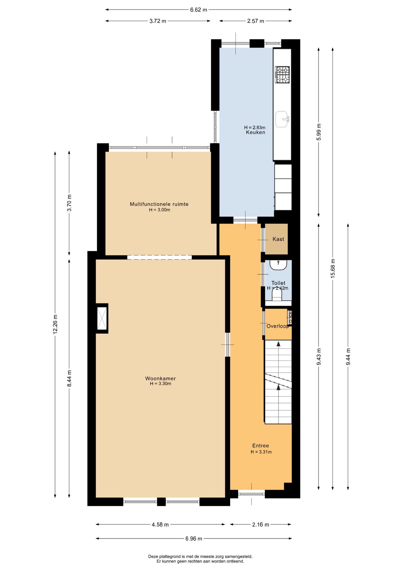
Souterrain
Het souterrain bestaat uit meerdere ruimtes. Hier zijn de meterkast, omvormer van de zonnepanelen, witgoedaansluiting, waterontharder en diverse vaste kasten aanwezig.
Begane grond
De brede entree hal is voorzien van een marmeren Bianco Carrara tegelvloer. Vanuit hier is er toegang tot het souterrain, het toilet met fonteintje en een bergkast met de warmtepomp en cv-ketel.

De diepe en brede woonkamer is voorzien van frans eiken extra breed visgraat parket. Het indrukwekkende hoge plafond heeft originele ornamenten en kroonlijsten en is voorzien van ingewerkte dimbare verlichting. Aan de voorzijde is vrij uitzicht op het rosarium. De gashaard zorgt voor extra sfeer en de airco zorgt zowel voor verkoeling als voor verwarming. Door de verhoogde ligging van de ramen t.o.v. het trottoir is er geen inkijk van buiten. Achterin bieden dubbele openslaande deuren directe toegang tot de tuin.

De keuken is volledig uitgerust en voorzien van een opstelling in de lengteweg. Er ligt een tegelvloer en er zijn een 5-pits gasfornuis, afzuigkap, oven, stoomoven, vaatwasser, koelkast, diepvries en apothekerskast aanwezig.
Eerste verdieping
Vanuit de overloop zijn de twee slaapkamers, de kleedkamer (optionele extra slaapkamer) en de badkamer bereikbaar.

De hoofdslaapkamer is voorzien van een pvc-vloer en biedt toegang tot het balkon aan de voorzijde van de woning. Vanuit hier is er een prachtig uitzicht over Het Rosarium. De tweede slaapkamer is voorzien van vloerbedekking, airco en dubbele openslaande deuren naar het platdak aan de achterzijde.

In de grote, hoogwaardig afgewerkte badkamer (2025) zijn een ruime inloopdouche voorzien van sunshower, toilet, dubbel wastafelmeubel, designradiator en mechanische ventilatie aanwezig. Er ligt een tegelvloer met een elektrische vloerverwarming.
Tweede verdieping
De tweede verdieping is bereikbaar door middel van de vaste trap. Op de overloop ligt vloerbedekking en is een Velux dakraam met screen aanwezig.

In de derde slaapkamer hangt een airco. Er ligt vloerbedekking en er is een Velux dakraam met screen aanwezig. De vliering zorgt voor extra opbergruimte. De vierde slaapkamer is voorzien van vloerbedekking en een dakkapel.

In de badkamer (2019) zorgt de dakkapel ook voor extra ruimte. Er zijn een grote inloopdouche, wastafelmeubel, zwevend toilet, design handdoekradiator en vloerverwarming aanwezig.
Tuin
De onder architectuur aangelegde achtertuin is heerlijk diep en biedt door verschillende niveaus extra privacy. De tuin is o.a. voorzien van een bestraat terras, kunstgras en padouk houten vlonders. De tuin is volledig ommuurd. Je geniet hier van veel rust ondanks dat je je op steenworp afstand van het centrum van Venlo bevindt. Het is een grote tuin met zwembad (met warmtepomp), elektra en buitenverlichting.
Bijzonderheden
- Optioneel: garage te huur.
- Houten kozijnen voorzien van HR++ beglazing.
- 15 zonnepanelen (2023) totaal 6.000 Kwh.
- Airco woonkamer en 2 slaapkamers.
- Vloerverwarming badkamers 1ste en 2de verdieping.
- Energielabel A++ (uniek bij woningen uit deze bouwperiode).
- Convector radiatoren in gehele woning geschikt voor lage temperatuur verwarming.
- Warmtepomp (2025).
- Beregeningsinstallatie (Rainbird) met druppelslangen.

Kenmerken

Zwembad
Zonnepanelen
Air conditioning
Overdracht
Vraagprijs
€ 898.750 k.k.
Status
beschikbaar
Aanvaarding
in overleg
Bouw
Soort woonhuis
Herenhuis
Soort bouw
tussenwoning
Bouwjaar
1926
Energieklasse
A++
Soort dak
samengesteld dak
Slaapkamers
5
Badkamers
2
Oppervlakten en inhoud
Woonoppervlakte
225 m2
Overige inpandige ruimte
36 m2
Gebouwgebonden buitenruimte
2 m2
Inhoud
807 m3
Perceeloppervlakte
240 m2
faciliteiten
Mechanische ventilatie
Zwembad
Airconditioning
Dakraam
Zonnepanelen
Aan rustige weg
In centrum
Baerz & Co Property Brochure

Brochure

Video’s

VeTeBe

Grotestraat 84a
5931 CX Tegelen

info@vetebe.nl
+31 77 3262600

www.vetebe.nl

Informatie / bezichtigingsaanvraag

Don Willems profile image
Don Willems
Makelaar

Een luxe woning kopen in Venlo

Venlo combineert traditie, modern comfort en internationale verbondenheid. De bruisende gemeenschap, het rijke culturele aanbod en maatwerk dienstverlening voldoen aan de wensen van internationale kopers en gezinnen die exclusiviteit zoeken.