Excellent Magazine werkt intensief samen met Baerz & Co Luxury Homes International, het trefpunt waar exclusieve huizen en veeleisende kopers samenkomen. Hieronder vindt u een geselecteerd aanbod van de meest exclusieve huizen op alle hot-spots in 20 landen rond de Middellandse zee, de Alpen, Mexico en Dubai.

TZUMMARUM
Sedyk 5 - 8851 RM
Nederland

Ellen Schoneveld profile image
Ellen Schoneveld
Real Estate Agent
€1.200.000 k.k.
Woonoppervlakte
295m2
Perceeloppervlakte
4468m2
Slaapkamers
6

Omschrijving

Waddenzee hide-away: stijlvol dijkhuis | bijhuis | wellness & panorama

Wat een unieke locatie! Verborgen tussen de bomen, aan een historisch stukje Waddenzee met vijver en landerijen, ligt dit bijzondere ensemble. Een volledig gemoderniseerde dijkwoning met wellness, paardenstallen en een recent onder architectuur gebouwd vrijstaand bijhuis. Volledig geïsoleerd, energielabel A+ en voorzien van het allerbeste comfort. Hier leef je in harmonie met de seizoenen, met een sfeer en de zilte geur die doet denken aan Terschelling. Met uitzicht over de Waddenzee en vijver, en eigen bostuin met panoramische Friese luchten – soms zelfs met het Noorderlicht als kers op de taart. Een plek waar rust, vrijheid en privacy vanzelfsprekend zijn.
Het perceel van 4.468 m² heeft een volledige woonbestemming, inclusief de mogelijkheid voor beroep aan huis. Het dijkhuis is in 2011 professioneel gerenoveerd, met behoud van karakter én oog voor comfort: energielabel A+, 24 -420 WP zonnepanelen, HR++ glas en een levensloopbestendige indeling met slaapkamers en badkamers op de begane grond. Op de verdieping bevinden zich nog twee sfeervolle slaapkamers en een derde loftkamer. De riante woonkeuken en woonkamer bieden panoramisch zicht over de Waddendijk, landerijen en de tuin.
Achter in de tuin, grenzend aan de vijver en met de mogelijkheid voor een eigen oprit, is een modern vrijstaand bijhuis gebouwd met totale privacy ten opzichte van het dijkhuis. Deze zelfstandige, hotel-chique woonruimte beschikt over open keuken, living, badkamer en in de loft een slaapkamer en atelier/werkkamer. Perfect voor dubbele bewoning, werken aan huis of mantelzorg.
De tuin is speels en fraai aangelegd met wellness-hoek, wandelpaden, boomgaard, terrassen en diverse zithoeken. De bostuin herbergt een paddock en twee paardenboxen met bergruimte en overkapping. Hier woon je in vrijheid, in de natuur en stilte, met de Waddenzee en haar fauna als achtertuin.

Indeling Dijkhuis

Begane grond
Bij binnenkomst valt meteen de stijl op: de voordeur met sierlijk smeedijzeren deurlichtrooster, een wand van oude Friese tegeltjes en een hardstenen vloer zetten de toon van dit zorgvuldig verbouwde dijkhuis. De hal geeft toegang tot een royale badkamer met dubbel wastafelmeubel, ligbad, inloopdouche en toilet.
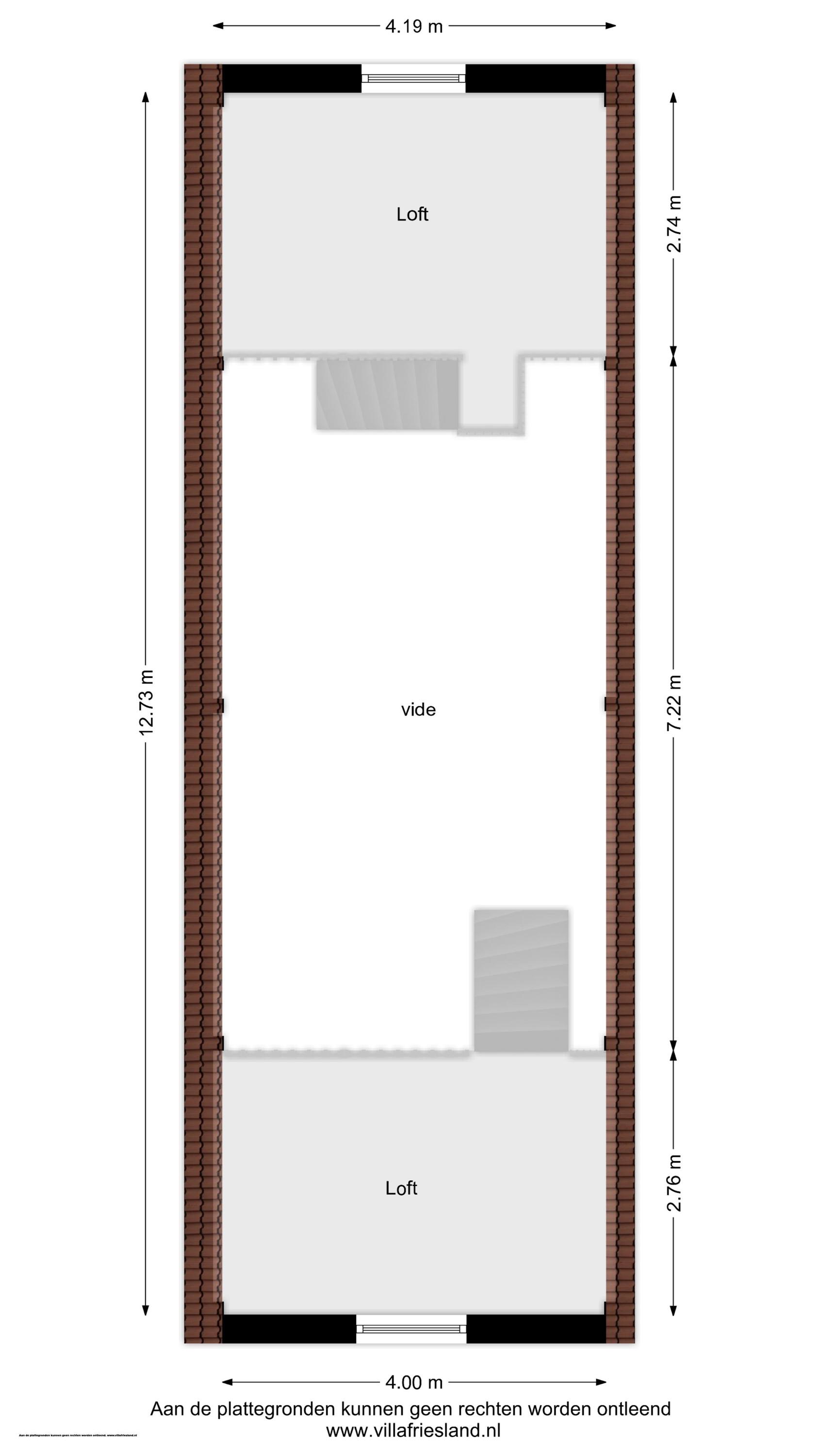
De lichte woonkeuken in de linker vleugel biedt panoramisch zicht op de Waddendijk en landerijen. Een centrale plek om te koken en te tafelen, voorzien van hoogwaardige inbouwapparatuur. Achter de keuken bevindt zich via een gang met prachtige Friese tegelwand de huidige studeerkamer, met deuren naar tuin en badkamer/toilet. Boven de studeerkamer ligt een lichte loft, geschikt als logeerkamer of atelier.
De woonkamer in de rechterflank van het huis toont het originele balkenplafond. De L-vormige living bestaat uit een muziekkamer met trap naar de verdieping, glas-in-lood schuifdeuren naar een werkkamer en een royale lichte tuinkamer met openslaande deuren en uitzicht op tuin, paardenstallen en boomgaard. Glas-in-lood deuren verbinden de tuinkamer met de master bedroom, die via een aparte ingang toegang heeft tot de wellnessruimte met jacuzzi, sauna, zonneterras en buitendouche. De master is verbonden met een werkkamer/walk-in closet.

Verdieping
De sfeer van de oude dijkwoning blijft voelbaar. Twee knusse, stijlvolle slaapkamers, overloop met royale inbouwkasten onder het zadeldak, dakbeschot en gebinten in het zicht. Beide slaapkamers zijn voorzien van een wastafelmeubel.

Indeling Bijhuis
Het bijhuis, type schuurwoning (ca 13x4.5m) is onder architectuur gebouwd, volledig geïsoleerd en rondom voorzien van hoge raampartijen (HR++) met panoramisch zicht. De huisje is aan de lange zijde zowel aan de voorkant als aan de achterkant middels openslaande tuindeuren te betreden. Met aan beide zijden terrassen met handgevormde klinkers. De lichte hoge ruimte met stoere douglas spanten in het zicht benadrukken het leven in en met de natuur. Dankzij het dark-sky gebied is de prachtige sterrenhemel helder in volle glorie te zien. Zelfs het Noorderlicht vertoont zich hier geregeld. En wat van de overvliegende zwermen water-, trek- en weidevogels..
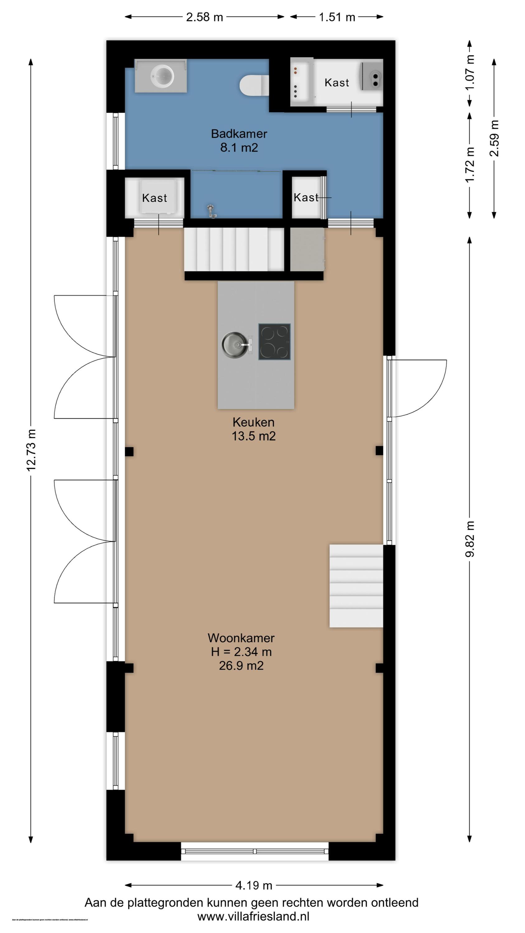
De luxe vloer met keramische tegels is voorzien van vloerverwarming, en de verlichting is domotica gestuurd.
Het centrum van de woning is de keuken in de open ruimte onder de vide. Het kook- en spoeleiland is voorzien van een luxe granieten aanrechtblad met inductiekookplaat en geintegreerde afzuiging en vaatwasser.
De badkamer en witgoedruimte zijn afgesloten ruimtes onder de rechter loft.
De luxe badkamer is voorzien van keramische tegels, een royale inloopdouche met rookglas, een stijlvol wastafelmeubel, toilet en design handoekradiator.
De living of het kantoor heeft een prominente plek onder de linker loft.
De twee gescheiden multifunctionele loftruimtes, ieder te bereiken middels een eigen trapopgang zijn te gebruiken als slaapkamer, werkruimte of atelier.
Het bijhuis is gefundeerd met gevelbekleding van douglas rabatdelen en er liggen 24-420 WP zonnepanelen op het dak. Gezien de ligging op het perceel is het een optie, in overleg met de gemeente, een eigen oprit voor het bijhuis te realiseren.

Perceel en bijgebouwen
Het ruime perceel is fraai aangelegd met wellness-hoek, wandelpaden, boomgaard, terrassen en diverse zithoeken. De bostuin biedt paddock en paardenboxen met bergruimte en overkapping. De voortuin is groenrijk met garage incl. laadpaal /werkplaats, houtopslag en overkapping. Vanuit de woningen loop je zo de Waddendijk op om te genieten van de magische Waddenzee met alles wat dit Unesco Werelderfgoed heeft te bieden.

Bijzonder stukje geschiedenis
Deze woning aan de Sedyk vindt zijn oorsprong in de rijke Friese dijkgeschiedenis. Het huidige huis werd rond 1924 gebouwd, nadat het eerdere pand met caféfunctie plaats moest maken voor dijkverhoging. Het buurtschap Koehool aan de Sedyk, met het gedenkpunt “Waadfisker”, is een markante plek aan de Waddenzee waar vissers en dijkwerkers hun bestaan vonden. Hier proef je de sfeer van het open wad, de weidse luchten en de cultuurhistorie van de Friese kust. Wonen aan de Sedyk betekent genieten van rust, ruimte en prachtig uitzicht, en deel uitmaken van een uniek historisch landschap.

Bijzonderheden
• Nieuw energielabel A+
• Volledig geïsoleerd, 24-240WP zonnepanelen (2023)
• Ruim perceel 4.468 m² met tuin, bos, boomgaard, wandelpaden
• Geheel woonbestemming, mogelijkheid voor beroep/kleine bedrijfsactiviteit aan huis
• Originele woning volledig gemoderniseerd en uitgebouwd in 2011
• Onder architectuur gebouwd vrijstaand bijhuis (bj 2021)
• Panoramisch uitzicht over Waddendijk, Waddenzee, vijver en landerijen
• Wellness met sauna, toilet, zonneterras, jacuzzi en buitendouche
• Twee houtkachels
• Schuur, garage-werkplaats met overkapping en houtopslag
• Paardenboxen met paddock
• Randstad via Afsluitdijk in 1.15 uur bereikbaar

Tzummarum
Op 15 minuten van Franeker en Harlingen ligt Tzumarrum, een dorp vol rust, ruimte en natuur. Voorzieningen zoals basisschool, huisarts, sportverenigingen, bakker, recreatiepark en horecagelegenheden zijn aanwezig. Verbindingen naar Franeker, Harlingen, Heerenveen en Leeuwarden zijn goed; Amsterdam bereikbaar via Afsluitdijk in ruim 1.15 uur, Groningen in 1 uur.

Dit is een plek voor wie uniek wil wonen: in vrijheid, natuur en stilte, met de Waddenzee letterlijk in de achter- en voortuin.

DISCLAIMER
Deze informatie is met grote zorgvuldigheid vanuit diverse bronnen samengesteld. Voor mogelijke onjuistheid en/of onvolledigheid van verstrekte informatie kunnen wij geen aansprakelijkheid aanvaarden, evenmin kan aan de inhoud van deze informatie (incl. bijlagen/brochures) rechten worden ontleend. Deze informatie is geheel vrijblijvend en niet meer dan een uitnodiging tot het doen van een voorstel. Bij woningen ouder dan 25 jaar wordt in de koopovereenkomst de ouderdoms- en asbestclausule opgenomen.

Kenmerken

Zonnepanelen
Overdracht
Vraagprijs
€ 1.200.000 k.k.
Status
beschikbaar
Aanvaarding
in overleg
Bouw
Soort woonhuis
Woonboerderij
Soort bouw
vrijstaande woning
Bouwjaar
1924
Energieklasse
A+
Soort dak
zadeldak
Slaapkamers
6
Badkamers
3
Oppervlakten en inhoud
Woonoppervlakte
295 m2
Overige inpandige ruimte
0 m2
Externe bergruimte
37 m2
Inhoud
1179 m3
Perceeloppervlakte
4468 m2
faciliteiten
Jacuzzi
Rookkanaal
Dakraam
Sauna
Domotica
Zonnepanelen
Natuurlijke ventilatie
Aan water
Aan rustige weg
Vrij uitzicht
Beschutte ligging
Buiten bebouwde kom
Landelijk gelegen
Zeezicht
Baerz & Co Property Brochure

Brochure

Video’s

Plattegronden

Villa Friesland Makelaardij

Lange Marktstraat 1
8911 AD Leeuwarden

info@villafriesland.nl
+31 (0)58 - 23 006 23

www.villafriesland.nl

Informatie / bezichtigingsaanvraag

Ellen Schoneveld profile image
Ellen Schoneveld
Real Estate Agent

Een luxe woning kopen in Tzummarum

Tzummarum blinkt uit met monumentale woningen, een hechte gemeenschap en uitstekende toegang tot Friese natuur en cultuur. Bewoners profiteren van een op maat gesneden leven en deskundige dienstverlening voor een veeleisend internationaal publiek.