Excellent Magazine werkt intensief samen met Baerz & Co Luxury Homes International, het trefpunt waar exclusieve huizen en veeleisende kopers samenkomen. Hieronder vindt u een geselecteerd aanbod van de meest exclusieve huizen op alle hot-spots in 20 landen rond de Middellandse zee, de Alpen, Mexico en Dubai.

SCHOORL
Duinweg 65 - 1871 AD
Nederland

Angeline Croonen profile image
Angeline Croonen
Real Estate Agent
€2.745.000 k.k.
Woonoppervlakte
273m2
Perceeloppervlakte
7454m2
Slaapkamers
4

Omschrijving

Om nieuwe werelden te ontdekken, hoeft u niet ver te reizen. Soms ligt het bijzondere dichterbij dan u denkt. Aan de Duinweg 65 in Schoorl mogen wij u een zeldzaam landhuis aanbieden met recreatiewoning en diverse bijgebouwen – een plek waar rust, historie en natuur samenkomen en waar u volledig tot uzelf kunt komen.

Via een langgerekt bospad bereikt u dit markante pand, gebouwd in 1935 met 17e-eeuwse bouwmaterialen naar een ontwerp van architect Royaards. Het huis ademt karakter en historie: robuuste open haarden, die momenteel niet functioneel zijn maar verbouwd mogen worden, antieke elementen zoals robuuste eiken houten balken en vloeren, en lemen muren die zorgen voor een behaaglijk woonklimaat en een weldadige nachtrust. Hier ervaart u de luxe van stilte, ruimte en privacy, omgeven door de geur van het bos, het zachte ruisen van de bomen én het gezang van talloze vogels – dit is werkelijk een vogelparadijs.

Het riante perceel van meer dan 7.000 m² is een oase van rust, volledig omsloten door een sloot met meerdere duinrellen en ingericht met bijzondere boomgroepen in een doordacht patroon. Naast het hoofdhuis vindt u onder andere een separaat en functioneel gastenverblijf en diverse charmante bijgebouwen en overkappingen, wat deze plek tot een uniek geheel maakt. Of u nu wilt ontspannen, inspiratie zoekt, gasten wilt ontvangen, een kopje thee wilt drinken in het sfeervolle theeprieel of een pizza wilt bakken in uw eigen lemen buitenoven – dit landhuis biedt het allemaal.

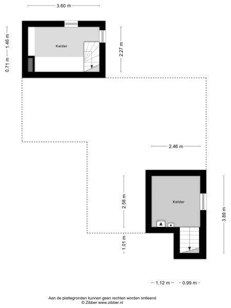
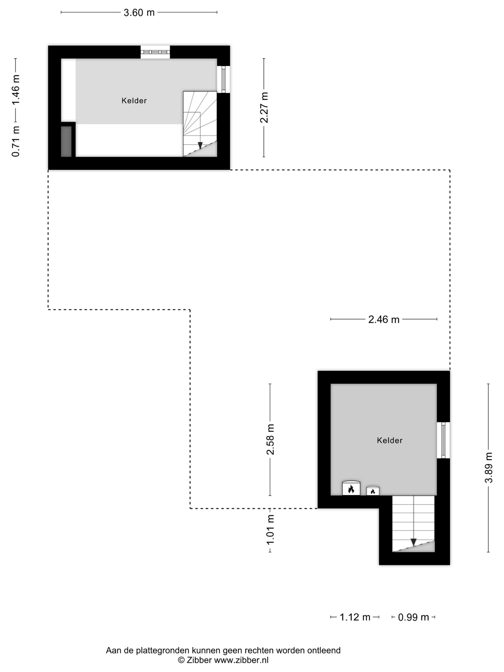
We nemen u alvast mee naar binnen in het hoofdhuis. De begane grond verwelkomt u met een lichte entree, open trap en toilet. De keuken, bijkeuken en kelder bieden volop mogelijkheden. De aangebouwde werkkamer is een fijne en inspirerende ruimte. De woonkamer aan de tuinzijde heeft een sfeervolle schouw, terwijl de woonkamer aan de voorzijde beschikt over een tweede open haard en een opkamer.
Op de verdieping vinden we naast de ruime overloop twee slaapkamers met vaste kasten en een moderne badkamer uitgevoerd in tadelakt, met toilet, ligbad, wastafel en douche. Prachtig ook om te zien hoe de balken in het zicht zijn gebleven.

Dit is een kans om te wonen op een plek waar tijd en natuur de hoofdrol spelen – een zeldzame combinatie van historie, comfort en vrijheid. Een plek om op te laden, te genieten en nieuwe inzichten op te doen. Welkom thuis aan de Duinweg in Schoorl. Wij nemen u graag mee voor een uitgebreide rondleiding.

Bijzonderheden:

- Toplocatie nabij strand en bos

- Separaat gastenverblijf (RW-bestemming)

- Rieten kap vernieuwd in 2008

- Unieke ervaring van sereniteit, ruimte, privacy en natuur

- Waterpomp voor grondwater ten behoeve van de tuin is aanwezig

- Hybride cv-ketels

Woonoppervlakte hoofdwoning: 187 m2
Woonoppervlakte recreatiewoning: 86 m2
Gebruiksoppervlakte bijgebouw I: 26 m2 plus verdieping 10 m2
Gebruiksoppervlakte bijgebouw II: 17,5 m2
Overige externe gebouwen circa 50 m2
Oppervlakte Yurt circa 48 m2
Inhoud hoofdwoning circa 660 m3

Kenmerken

Overdracht
Vraagprijs
€ 2.745.000 k.k.
Status
beschikbaar
Aanvaarding
in overleg
Bouw
Soort woonhuis
Landhuis
Soort bouw
vrijstaande woning
Bouwjaar
1935
Energieklasse
D
Soort dak
schilddak
Slaapkamers
4
Badkamers
2
Oppervlakten en inhoud
Woonoppervlakte
273 m2
Overige inpandige ruimte
17 m2
Externe bergruimte
94 m2
Inhoud
660 m3
Perceeloppervlakte
7454 m2
faciliteiten
Tv kabel
Rookkanaal
Dakraam
Vrij uitzicht
Beschutte ligging
In bosrijke omgeving
Baerz & Co Property Brochure

Brochure

Video’s

Plattegronden

Croon Makelaars

Breelaan 41
1861 GD Bergen

info@croonmakelaars.nl
+31 (0)72 743 32 44

www.croonmakelaars.nl

Informatie / bezichtigingsaanvraag

Angeline Croonen profile image
Angeline Croonen
Real Estate Agent

Een luxe woning kopen in Schoorl

Schoorl trekt wie wil wonen in luxe midden in de natuur. Deze exclusieve enclave biedt persoonlijke service, een discrete gemeenschap en direct toegang tot het kustlandschap – aantrekkelijk voor internationale kopers die rust en karakter zoeken.