Excellent Magazine werkt intensief samen met Baerz & Co Luxury Homes International, het trefpunt waar exclusieve huizen en veeleisende kopers samenkomen. Hieronder vindt u een geselecteerd aanbod van de meest exclusieve huizen op alle hot-spots in 20 landen rond de Middellandse zee, de Alpen, Mexico en Dubai.

OOSTZAAN
Zuideinde 89 - 1511 GB
Nederland

Niels Eering profile image
Niels Eering
Real Estate Agent
€2.195.011 k.k.
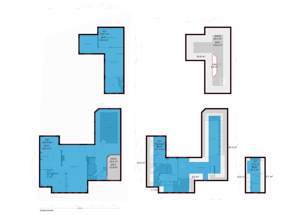
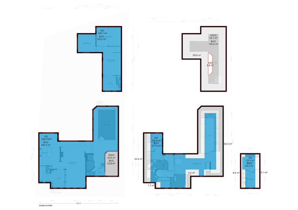
Woonoppervlakte
438m2
Perceeloppervlakte
1123m2
Slaapkamers
4

Omschrijving

Exclusieve Amerikaanse villa met inpandig zwembad en vrijstaand bijgebouw op een toplocatie in Oostzaan

Bent u op zoek naar ongekende luxe, privacy en ruimte, op slechts enkele minuten van Amsterdam? Dan is deze imposante vrijstaande villa een unieke kans. Met een riant woonoppervlak van maar liefst 438 m² en een aanvullend vrijstaand bijgebouw van 110 m2 biedt Zuideinde 89 in Oostzaan een woonervaring van het hoogste niveau.

Statige uitstraling en luxe afwerking
Bij binnenkomst wordt direct duidelijk dat dit geen doorsnee woning is. De grandeur van de villa wordt benadrukt door hoogwaardige afwerkingen zoals visgraatparketvloeren, Italiaanse marmeren badkamers, luxe raambekleding en handgemaakte inbouwkasten. De royale living is voorzien van een stijlvolle cinewall met een grote flatscreen en een sfeervolle open haard (Anneke Dekkers).

Inpandig zwembad en wellness
Een van de absolute hoogtepunten is het inpandige zwembad met wellnessruimte. Dit exclusieve zwembad (gerenoveerd in 2022) is fraai geïntegreerd in de villa en wordt gescheiden van de living door een glazen wand. Vanuit de zwembadruimte heeft u direct toegang tot de riante tuin met een groot terras, ideaal om te ontspannen in een luxe loungesetting.

Indeling
Begane grond:
De statige entree met ingebouwde garderobe en gastentoilet leidt naar de royale woonkeuken in landhuisstijl, voorzien van een werkeiland, servieskast en luxe inbouwapparatuur, waaronder twee vaatwassers, twee koelkasten, twee vriezers, twee combi-heteluchtovens en een vijfpits Boretti-fornuis. Vanuit de woonkeuken, living en zwembadruimte bieden dubbele openslaande deuren directe toegang tot de prachtig aangelegde achtertuin.
De villa beschikt over een inpandige garage, waar tevens de technische installaties voor het zwembad en de separate cv (2022) zijn ondergebracht. De gehele woning is voorzien van vloerverwarming.

Eerste verdieping:
Op de eerste verdieping bevinden zich drie riante slaapkamers, elk met een privébadkamer. De mastersuite is een klasse apart, met een vrijstaand rond ligbad, een eigen badkamer met toilet, een exclusief antiek badmeubel (Pander) met dubbele wastafel en een ruime inloopdouche. De suite beschikt daarnaast over een directe verbinding met de wellnessruimte op de begane grond via een privétrap. Een absolute eyecatcher is de indrukwekkende walk-in closet van circa 50 m², compleet met maatwerk kastensysteem, spiegels, sfeerverlichting en een marmeren vloer. Alle slaapkamers zijn uitgerust met airconditioning.

Tweede verdieping:
Op de tweede verdieping bevindt zich een royale overloop met wasruimte en extra bergruimte, evenals de cv-opstelling, een boiler en een ruime vierde slaapkamer met maatwerk inbouwkasten.

Vrijstaand duurzaam bijgebouw (110 M2) – een veelzijdige toevoeging
Dit luxueuze bijgebouw biedt tal van mogelijkheden, zoals een praktijk aan huis, een guesthouse, een bed & breakfast, een kantoor of woonruimte voor familie of een au pair. Het bijgebouw heeft een eigen opgang en beschikt over een royale showroom, een kantoorruimte met plaats voor drie werkplekken, een pantry en een tweede showroom. Ook is het mogelijk om drie slaapkamers te realiseren. De begane grond biedt middels openslaande deuren toegang tot de zonnige veranda, die zich over de gehele voorzijde uitstrekt.

Eerste verdieping:
Op de bovenverdieping bevindt zich een ruime show-/opslagruimte en de cv-opstelling.

Tuin en buitenruimte – een oase van rust en privacy
De onder architectuur aangelegde tuin biedt een exclusieve deck-garden met diverse zonneterrassen, sfeervolle beplanting, een geavanceerd sproeisysteem en strategische verlichting. De villa is volledig omheind en voorzien van een elektrisch toegangshek, wat zorgt voor maximale privacy en veiligheid. Aan de voorzijde biedt de fraai bestrate oprit parkeergelegenheid voor meerdere auto’s.

Toplocatie vlak bij Amsterdam
Oostzaan is een geliefde woonplaats, mede door de unieke combinatie van rust, ruimte en de nabijheid van Amsterdam. De villa ligt op slechts 5 minuten rijden van de ringweg A10 en binnen 15 minuten fietsen bereikt u de pontjes over het IJ naar het centrum van Amsterdam. Recreatiegebied Het Twiske, met zijn wandelpaden, zoetwaterstranden en sportfaciliteiten, ligt op loopafstand.

Bij aankomst voelt u direct de serene luxe. U rijdt door het sfeervolle centrum van Oostzaan, opent het elektrische hek en betreedt uw eigen exclusieve toevluchtsoord. Hier vindt u de perfecte balans tussen stadse elegantie en landelijke rust.

Interesse?
Bent u klaar om deze droomvilla zelf te ervaren? Neem dan vandaag nog contact met ons op voor een bezichtiging of om een exclusieve brochure aan te vragen.

Kenmerken

Zwembad
Air conditioning
Overdracht
Vraagprijs
€ 2.195.011 k.k.
Status
beschikbaar
Aanvaarding
in overleg
Bouw
Soort woonhuis
Villa
Soort bouw
vrijstaande woning
Bouwjaar
1990
Soort dak
samengesteld dak
Slaapkamers
4
Badkamers
4
Oppervlakten en inhoud
Woonoppervlakte
438 m2
Overige inpandige ruimte
21 m2
Inhoud
2258 m3
Perceeloppervlakte
1123 m2
faciliteiten
Zwembad
Airconditioning
Stoomcabine
Sauna
In centrum
Baerz & Co Property Brochure

Brochure

Video’s

Plattegronden

11 Makelaars - Waterland

Nieuwe Gouw 10-12
1121 GX Landsmeer

info@11makelaars.nl
+31 20 20 50 208

www.11makelaars.nl

Informatie / bezichtigingsaanvraag

Niels Eering profile image
Niels Eering
Real Estate Agent

Een luxe woning kopen in Oostzaan

Oostzaan combineert een zeldzaam gevoel van privacy, hoogwaardige woningen en een vooruitstrevende dorpsmentaliteit. Bewoners genieten een levendige lifestyle, betrouwbare voorzieningen en een internationaal karakter op slechts enkele minuten van hartje Amsterdam.