Excellent Magazine werkt intensief samen met Baerz & Co Luxury Homes International, het trefpunt waar exclusieve huizen en veeleisende kopers samenkomen. Hieronder vindt u een geselecteerd aanbod van de meest exclusieve huizen op alle hot-spots in 20 landen rond de Middellandse zee, de Alpen, Mexico en Dubai.

KOSTRENA
Kroatië

Mateja Funtek Derča profile image
Mateja Funtek Derča
Personal Property Advisor
€850.000
Woonoppervlakte
250m2
Perceeloppervlakte
N/A
Slaapkamers
4

Omschrijving

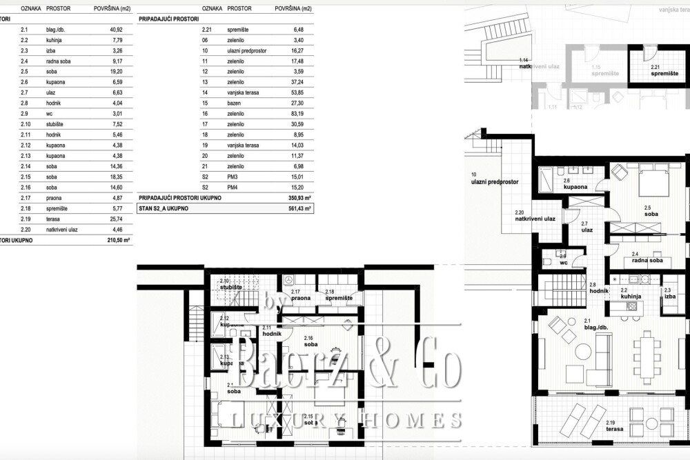
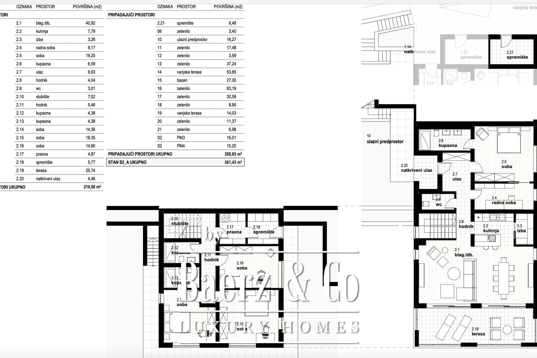
Appartement Kostrena zet een nieuwe standaard voor verfijnd wonen aan de Kroatische Kvarner-kust. Deze woning van 250 m² beslaat twee verdiepingen in een modern, tweelaags gebouw, met vier slaapkamers en een weids uitzicht op zee. De indeling is gecreëerd voor dagelijks comfort en ingetogen luxe, met een woon- en eetkamer van 42,20 m² die naadloos overloopt in een eigentijdse keuken van 7,73 m², perfect voor samenkomen of een moment van rust.

Elke van de vier slaapkamers biedt ruimte en balans, waarbij de master suite 21,91 m² beslaat en de overige drie elk 14,20 m² groot zijn. Doordachte details zoals drie stijlvolle badkamers, een inloopkast, wasruimte, voorraadruimte en berging dragen bij aan het woongenot. Een overdekt terras van 26,14 m² brengt het panoramische uitzicht op de Adriatische Zee naar het dagelijks leven, aangevuld met extra buitenterrassen en een aangelegde tuin.

Het appartement beschikt over een privézwembad, twee gereserveerde parkeerplaatsen en een aparte berging van 6,48 m². Hoogwaardige afwerkingen, vloerverwarming via warmtepomp, airconditioning, geavanceerde beveiliging en ALU BEN aluminium kozijnen komen samen met smart-home integratie voor optimaal comfort en controle. Met de zee op slechts 1.118 meter afstand zijn stranden en boulevards snel bereikbaar. De woning wordt turn-key opgeleverd, inclusief btw, waarbij de koper is vrijgesteld van overdrachtsbelasting. Appartement Kostrena onderstreept een levensstijl van rust, doordacht design en nabijheid van de kust.

Ontdek Kostrena met Baerz, Uw Vertrouwde Personal Property Finder & Advisor

Het topsegment van de vastgoedmarkt in Kostrena kent veel nuances, waarbij strategische zoektochten en discrete onderhandeling samenkomen. Lokale adviseurs verschaffen unieke toegang tot off-marketobjecten en begeleiden klanten vakkundig door alle regelgeving en relatiegerichte transacties. Hun expertise waarborgt optimale condities voor zowel kopers als verkopers en beschermt vermogen en reputatie gedurende het hele proces.

Vermijd veelvoorkomende valkuilen

Internationale kopers verspillen vaak kostbare tijd aan dubbele, verouderde of misleidende online aanbiedingen, en ook omdat bijna 30% van de luxe woningen nooit openbaar op de markt verschijnt. Verkopersmakelaars behartigen de belangen van de verkoper, niet die van kopers. Alleen al het aanvragen van informatie over een woning kan ertoe leiden dat een verkoopmakelaar u zonder uw toestemming als “cliënt” registreert.
Met Baerz Property Finders & Advisors voorkomt u al deze valkuilen volledig. Wij werken uitsluitend in uw belang en bieden onafhankelijke vertegenwoordiging, heldere begeleiding en toegang tot alle beschikbare woningen, inclusief off-market aanbiedingen die anderen nooit te zien krijgen.

Interesse in een Personal Property Advisor?

Wij tonen u alle beschikbare woningen op één plek. Neem gerust contact met ons op om te zien hoe wij aan uw wensen kunnen voldoen en uitsluitend uw belangen zullen beschermen.

Kenmerken

Overdracht
Vraagprijs
€ 850.000
Referentie
535186
EUR
Bouw
Soort woonhuis
apartment
Slaapkamers
4
Badkamers
4
Oppervlakten en inhoud
Woonoppervlakte
250 m2
Perceeloppervlakte
0 m2
Baerz & Co Property Brochure

Brochure

Video’s

Informatie / bezichtigingsaanvraag

Mateja Funtek Derča profile image
Mateja Funtek Derča
Personal Property Advisor

Een luxe woning kopen in Kostrena

Kostrena biedt een exclusieve kustlevensstijl, waar privacy, cultuurbeleving en toegang tot hoogwaardige voorzieningen samenkomen. Internationale aantrekkingskracht, een hechte gemeenschap en verfijnde faciliteiten zijn afgestemd op de wensen van veeleisende wereldburgers.