Excellent Magazine werkt intensief samen met Baerz & Co Luxury Homes International, het trefpunt waar exclusieve huizen en veeleisende kopers samenkomen. Hieronder vindt u een geselecteerd aanbod van de meest exclusieve huizen op alle hot-spots in 20 landen rond de Middellandse zee, de Alpen, Mexico en Dubai.

KONINGSBOSCH
Kerkstraat 14 - 6104 AC
Nederland

Roland Kuijpers profile image
Roland Kuijpers
NVM Makelaar - RMT
€1.295.000 k.k.
Woonoppervlakte
516m2
Perceeloppervlakte
1550m2
Slaapkamers
5

Omschrijving

Een cadeautje achter de voordeur; hier schuilt een paradijsje! Deze instapklare en hoogwaardig afgewerkte vrijstaande carréboerderij is werkelijk een droom. Een prachtige woning die sfeer en gezelligheid ademt! Je kunt hier meteen beginnen met verhuizen. De woning heeft maar liefst 516 m² woonoppervlak en biedt volop mogelijkheden door de aanwezigheid van kantoorruimtes, een vrijstaande garage en is hierdoor uitermate geschikt voor gebruik als kantoor/praktijk aan huis of dubbele bewoning.

Nu is het moment aangebroken voor nieuwe bewoners om te profiteren van de sfeer en het comfort dat Kerkstraat 14 in Koningsbosch zal brengen. De woning is gebouwd in 2009, volledig geïsoleerd, voorzien van dubbele HR beglazing, volledige vloerverwarming, een WTW Klimaatinstallatie en maar liefst 136 zonnepanelen. De woning kan hierdoor elke vergelijking met nieuwbouw moeiteloos doorstaan. Een perceel van maar liefst 1.550m² maakt het woongenot compleet!

Wordt dit de woning waar jij ja op gaat zeggen?

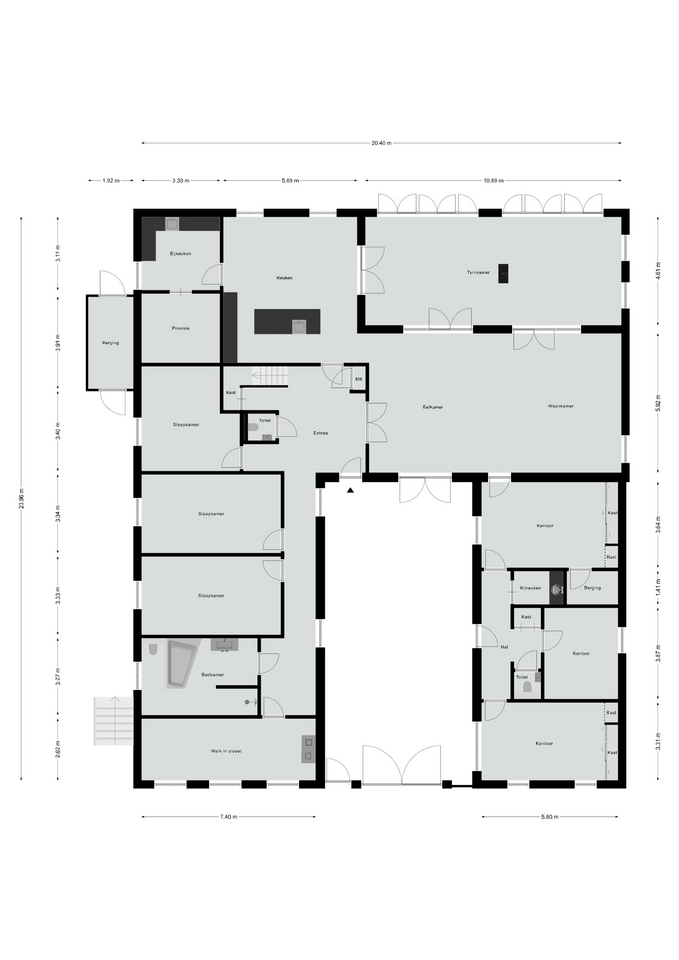
Begane grond:
Deze luxe afgewerkte woning is gebouwd in een U-vorm met een sfeervolle binnenplaats. Aan de linkerzijde ligt het woongedeelte. Bij binnenkomst in de royale hal valt direct de prachtige plavuizenvloer op, samen met de meterkast, trapopgang naar de eerste verdieping en een stijlvol toilet met fonteintje. Vanuit de hal komen we in de ruime woonkamer, gekenmerkt door strak gestucte wanden, inbouwspots en openslaande tuindeuren naar de binnenplaats. Warme kleuren, zachte stoffen en naturel materialen; allemaal ingrediënten die bijdragen aan een huiselijk 'ik kom thuis'-gevoel. Dit alles vind je zeker terug in deze prachtige woonkamer. Alles is netjes, maar vooral sfeervol en luxe afgewerkt.

Dankzij de open verbinding tussen de keuken en zowel het eet- als het leefgedeelte is er genoeg ruimte om gezellig met het hele gezin samen te zijn. De moderne halfopen keuken is geplaatst in een praktische wandopstelling, aangevuld met een kookeiland, waardoor je over meer dan voldoende werk- en opbergruimte beschikt. Daarnaast is het geheel voorzien van alle wenselijke inbouwapparatuur, zoals: een inductiekookplaat, spoelbak, vaatwasser, stoomoven, combimagnetron en koelkast. De keuken heeft veel daglicht en biedt een mooi uitzicht op de tuin. Aangrenzend bevindt zich de bijkeuken, voorzien van een hoekopstelling met koelkast, combi-oven, ingebouwde grill en frituurpan, en een afzuigkap. Er is tevens een handige provisieruimte.

De tuinkamer, bereikbaar vanuit zowel de woonkamer als keuken, is een lichte ruimte met volledig te openen harmonica deuren en een sfeervolle kachel, ideaal voor elk seizoen. Verder zijn er op de begane grond drie ruime slaapkamers en een luxe badkamer met ligbad, inloopdouche, wastafel en toilet. Aangrenzend aan de badkamer ligt een royale inloopkast, met aansluitingen voor het witgoed.

Het kantoorgedeelte bevindt zich aan de andere kant van de woning en is bereikbaar via de woonkamer of een eigen ingang. De hal leidt naar een toilet en meterkast, met drie kantoorkamers voorzien van opbergruimte, een kitchenette en een berging.

De gehele begane grond, met uitzondering van de tuinkamer, is voorzien van vloerverwarming.

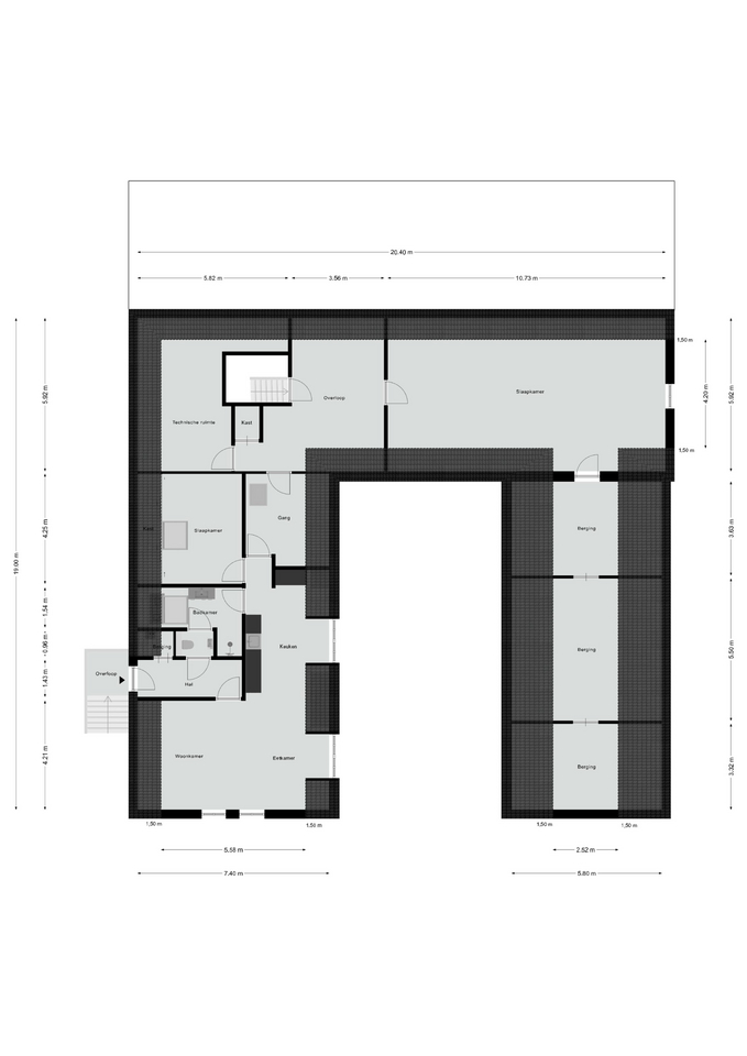
Eerste verdieping:
De eerste verdieping is toegankelijk via zowel de binnen- als de buitentrap. Ook hier is de ruimte verdeeld in twee delen. Het ene deel bevat een royale overloop, technische ruimte, zeer ruime slaapkamer en een bergzolder. Aan de andere kant bevindt zich een zelfstandig appartement, compleet uitgerust voor autonoom wonen. Via de buitentrap komen we binnen in een hal met toilet. Vanuit hier bereiken we de royale woon-/eetkamer. Deze is voorzien van een luxe keuken. De badkamer is uitgerust met: een wastafel, inloopdouche en witgoedaansluitingen. De slaapkamer heeft een handige schuifdeurenkast. Ook deze verdieping beschikt over vloerverwarming en profiteert van veel daglicht door de dakramen.

Tuin:
Bij lekker wonen hoort ook lekker buiten kunnen zijn op zijn tijd. In de prachtig aangelegde, onderhoudsvriendelijke tuin, moet dat zeker goed komen. Dit is werkelijk een oase van rust. Plaats een comfortabele lounge set en geniet in alle rust van het buitenleven. De tuin biedt voldoende privacy en is verder voorzien van: een verwarmd zwembad (met automatische lamellenafdekking), een buitendouche, vijverpartij en een royaal gazon.

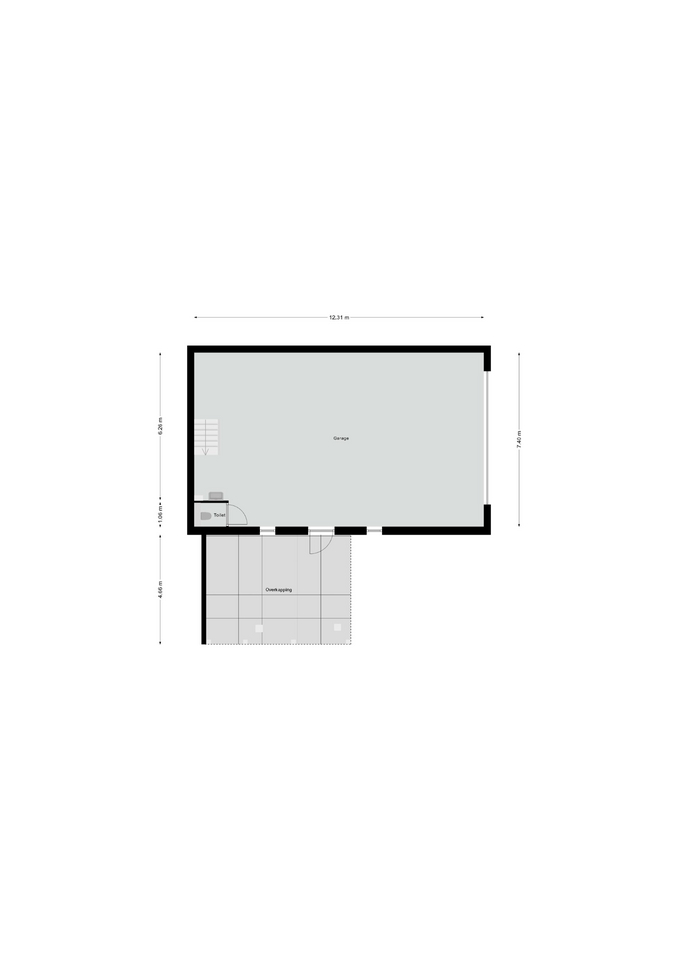
De vrijstaande garage is uitgerust met een elektrische poort, heeft een zolderruimte en een toilet. Het aangrenzende terras met overkapping biedt een heerlijke plek om van het buitenleven te genieten.

Bijzonderheden:
* Woonoppervlak van maar liefst 516 m²
* Energielabel A++
* Hoogwaardige afwerking en instapklaar
* Volledige isolatie, dubbele HR beglazing en vloerverwarming
* WTW Klimaatinstallatie en zonnepanelen (136 stuks, eigendom)
* Alle dagelijkse voorzieningen binnen handbereik
* Goede bereikbaarheid door de ligging aan de A2 en A73

Omgeving:
Deze woning is gelegen in een fijne kindvriendelijke omgeving in Koningsbosch. Met in de directe omgeving diverse speelweides en voorzieningen. Koningsbosch, is een van de vele kernen van de Midden-Limburgse gemeente Echt-Susteren, gelegen in het smalste stukje Nederland.

Koningsbosch is een dorp met ongeveer 1.700 inwoners en heeft goede basisvoorzieningen: o.a. basisschool (loopafstand), gemeenschapshuis, huisarts, apotheek, fysio, bakker, diverse boerderijwinkels, bloemenwinkel, overige winkels, diverse horeca-gelegenheden en veel verenigingen (waaronder muziek-, tennis- en voetbalvereniging). Vanuit Koningsbosch is Duitsland eenvoudig bereikbaar en is er een goede verbinding tussen Zuid- en Midden-Limburg. Brunssum en Sittard zijn binnen 10 minuten bereikbaar, Heerlen en Roermond binnen 20 a 25 minuten. Het is een groene en landelijke omgeving, waar het mooi verblijven is en mooie wandel- en fietstochten te maken zijn.

Kenmerken

Zwembad
Zonnepanelen
Alarm system
Overdracht
Vraagprijs
€ 1.295.000 k.k.
Status
beschikbaar
Aanvaarding
in overleg
Bouw
Soort woonhuis
Woonboerderij
Soort bouw
vrijstaande woning
Bouwjaar
2009
Energieklasse
A++
Soort dak
zadeldak
Slaapkamers
5
Badkamers
1
Oppervlakten en inhoud
Woonoppervlakte
516 m2
Overige inpandige ruimte
56 m2
Externe bergruimte
160 m2
Inhoud
2197 m3
Perceeloppervlakte
1550 m2
faciliteiten
Alarminstallatie
Rolluiken
Tv kabel
Zwembad
Rookkanaal
Dakraam
Glasvezel kabel
Zonnepanelen
In woonwijk
In bosrijke omgeving
Landelijk gelegen
Baerz & Co Property Brochure

Brochure

Video’s

Plattegronden

Damen Makelaardij

Ambyerstraat-Noord 72
6225 EG Maastricht

r.kuijpers@damen-og.nl
+31 433479090

www.damen-og.nl

Informatie / bezichtigingsaanvraag

Roland Kuijpers profile image
Roland Kuijpers
NVM Makelaar - RMT

Een luxe woning kopen in Koningsbosch

Koningsbosch biedt bevoorrecht wonen tussen erfgoed, privacy en natuur. De verfijnde gemeenschap, het geselecteerde aanbod en uitstekende internationale bereikbaarheid verzekeren een discrete, elegante lifestyle voor wereldse kopers.