Excellent Magazine werkt intensief samen met Baerz & Co Luxury Homes International, het trefpunt waar exclusieve huizen en veeleisende kopers samenkomen. Hieronder vindt u een geselecteerd aanbod van de meest exclusieve huizen op alle hot-spots in 20 landen rond de Middellandse zee, de Alpen, Mexico en Dubai.

BAARLE-NASSAU
Hoogbraak 48 - 5111 CT
Nederland

Andy Tjokrokoesoemo profile image
Andy Tjokrokoesoemo
Real Estate Agent
€1.595.000 k.k.
Woonoppervlakte
466m2
Perceeloppervlakte
2270m2
Slaapkamers
3

Omschrijving

Het beste van twee werelden komt hier samen. De architectonische schoonheid van een statig herenhuis in combinatie met een bijzonder hoog wooncomfort. Wij heten u hartelijk welkom bij Hoogbraak 48 te Baarle-Nassau. Een hoogwaardige villa gelegen op een fijne locatie met in de nabijheid alle dagelijkse voorzieningen én de natuur. De woning heeft een woonoppervlak van maar liefst 466m2, staat op een royaal perceel van 2.270m2 eigen grond en heeft een gunstig energielabel A.

Middels de keurig aangelegde voortuin bereikt u de statige entree van de woning. Bij binnenkomst is direct duidelijk dat er goed is nagedacht over de zichtlijnen in en rond de woning. De hal is voorzien van een meterkast, een toiletruimte, een vestiaire, een trapopgang voor toegang tot de verdieping en biedt toegang tot de woonvertrekken.

BEGANE GROND

De begane grond is gecompartimenteerd in drie leefruimtes die doormiddel van een openverbinding een geheel vormt. Wat meteen opvalt is de hoeveelheid daglichttoetreding. Dit zorgt, in combinatie met de hoge plafonds, voor een aangenaam gevoel.

De zitkamer is voorzien van een parketvloer, een ingebouwde gashaard, inbouwverlichting en een tuindeur. Door de grote raampartijen aan zowel de voor, zij-als achterzijde is er veel natuurlijke lichtinval en heeft u een heerlijk uitzicht op de tuin.

De eetkamer is gesitueerd in het midden en is voorzien van een parketvloer en een tuindeur voor direct toegang tot de veranda. Hierdoor is, zeker met mooi weer, de veranda een schakel tussen het binnen-en buitenleven.

Het kloppende hart van deze woning is uiteraard de prachtige leefkeuken. Vanwege het open karakter van deze ruimte is dit de plek waar u als gezin samen kunt komen. Het grote eiland in het midden is een plek om zowel te koken als te zitten.

De keuken is voorzien van een modulair BORA systeem met 2 inductie kookplaten, 2 interne afzuigingen en een teppanyaki plaat, een Quooker kraan, 2 koelkasten, een vriezer, een stoomoven, een bakoven, een vaatwasser en een wijnklimaatkast.

Aansluitend heeft u vanuit de keuken toegang tot de multifunctionele zijvleugel van de woning met een bijkeuken, een werkkamer, een tuinkamer, een toiletruimte, een zolderverdieping en een achteringang voor direct toegang tot de oprit. De zijvleugel met eigen entree is uitermate geschikt om te gebruiken als bijvoorbeeld een mantelzorg woning of kantoor/praktijk aan huis.

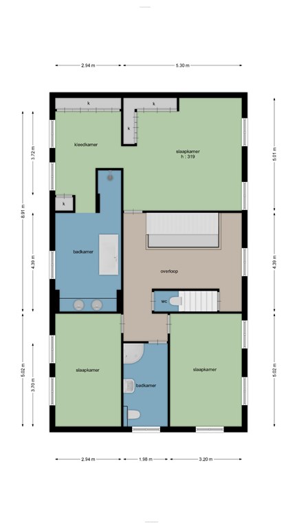
Middels de trapopgang in de hal bereikt u de overloop, slaapkamers en badkamers op de eerste verdieping.

VERDIEPING

Slaapkamer 1 gelegen aan de voorzijde van de woning. Deze master suite, met doorkijkjes naar de tuin, is een oase van rust. Aansluitend heeft u toegang tot een kleedkamer en een complete badkamer met inloopdouche, een vrijstaand ligbad en 2 waskommen met meubel.

Slaapkamer 2 gelegen aan de voorzijde van de woning.

Slaapkamer 3 gelegen aan de achterzijde van de woning.

De tweede badkamer is voorzien van een wandcloset, een douche en een brede wastafel met meubel. Op de overloop bevindt zich een extra separate toiletruimte.

Evenals de leefruimtes beneden is de verdieping voorzien van hoge plafonds. Dit zorgt samen met de hoeveelheid daglichttoetreding voor een aangename woonbeleving op de verdieping.

Middels een afgesloten trapopgang op de overloop heeft u toegang tot de grote zolderverdieping.

ZOLDER

De zolderverdieping is in de huidige opzet één grote ruimte die multifunctioneel gebruikt kan worden. De zolder is voorzien van extra aansluitingen voor de wasmachine en de opstelplaats van de CV-Installatie. Het is mogelijk om hier extra slaapkamers te creëren, eventueel met een kleine badkamer.

TUIN & AANHORIGHEDEN

De fraai aangelegde tuin ligt rondom de woning en is een fijne plek voor mensen die van het buitenleven houden. De tuin is voorzien van een groot gazon, groenborders met volwassen beplanting, fruitbomen, verlichting, een terras met veranda, een beregeningsinstallatie en diverse gezellige hoekjes. Voor de liefhebbers is er ook ruimte om een groente kas te plaatsen. Ook is er een oprit met plaats voor diverse voertuigen, is er een laadpaalvoorbereiding en een garage met openslaande deuren.

De veranda is voorzien van inbouwverlichting en heaters. Dit is een gezellige plek voor lange zomeravonden met het gezin, vrienden of familie. Dit is een plek waar nieuwe herinneringen gemaakt worden.

WONEN IN BAARLE

Het dorp “Baarle” bestaat uit de Nederlandse gemeente Baarle-Nassau en de Belgische gemeente Baarle-Hertog. Het dorp ligt midden in de groene driehoek tussen Breda, Tilburg en Turnhout. Men noemt Baarle ook weleens het merkwaardigste dorp ter wereld. Dit komt doordat het dorp uit maar liefst 30 enclaves bestaat! 22 Belgische en 8 Nederlandse enclaves maakt dat Baarle de ‘World capital of Enclaves’ is.

Wonen in Baarle is wonen in een dorp met veel voorzieningen. Zo zijn er onder andere Nederlandse en Belgische kinderopvanglocaties, basisscholen, voetbalclubs, tennisverenigingen en huisartsen. Ook is er een Nederlandse hockey en atletiekvereniging, middelbare school en zijn er diverse supermarkten zoals een Albert Heijn, Jumbo en Aldi. Aan horeca, bakkers, drogisterijen en detailhandel is in Baarle ook voldoende aanbod.

Liefhebbers van natuur zijn in Baarle ook goed op hun plek. De omgeving kent mooie wandelroutes, fietsroutes en prachtige natuurgebieden.

BIJZONDERHEDEN

- Opgeleverd in 2009;
- Energielabel A, geldig tot 05/10/2026;
- Woonoppervlak: 466m2;
- Perceeloppervlak: 2.270m2;
- Bruto inhoud: 1.854m3;
- Voorbereiding WTW-systeem aanwezig;
- Mogelijkheid voor kantoor/praktijk aan huis;
- Mogelijkheid voor inwonende ouders (mantelzorg);
- Instapklaar, hoog niveau van comfort en goed onderhouden;
- NEN 2580 meetrapport beschikbaar;
- Gelegen nabij uitvalswegen in de groene driehoek tussen Breda, Tilburg en Turnhout;
- Gelegen op korte afstand van alle voorzieningen én de natuur.

Van Baarle Makelaardij heeft alle informatie in deze advertentie met de grootst mogelijke zorgvuldigheid samengesteld. Ondanks de betrachte zorgvuldigheid kan de gepubliceerde informatie onvolledig of onjuist zijn. Van Baarle Makelaardij aanvaard geen enkele aansprakelijkheid voor enige onvolledigheid, onjuistheid of anderszins dan wel gevolgen daarvan. U kunt ons uiteraard helpen de informatie correct te houden. Onjuistheden of tips kunt u telefonisch of per e-mail aan ons doorgeven.

Kenmerken

Alarm system
Garage
Overdracht
Vraagprijs
€ 1.595.000 k.k.
Status
Available
Aanvaarding
In Concert
Referentie
179
Bouw
Soort woonhuis
Villa
Soort bouw
Detached House
Bouwjaar
2009
Energieklasse
A
Soort dak
hipped
Slaapkamers
3
Badkamers
2
Oppervlakten en inhoud
Woonoppervlakte
466 m2
Overige inpandige ruimte
25 m2
Gebouwgebonden buitenruimte
17 m2
Inhoud
1854 m3
Perceeloppervlakte
2270 m2
faciliteiten
Alarm
Garage
Garden
Baerz & Co Property Brochure

Brochure

Video’s

Plattegronden

Van Baarle Makelaardij

Hoogbraak 1
5111 CS Baarle-Nassau

andy@vanbaarlemakelaardij.com
+31 013762 02 02

www.vanbaarlemakelaardij.com

Informatie / bezichtigingsaanvraag

Andy Tjokrokoesoemo profile image
Andy Tjokrokoesoemo
Real Estate Agent

Een luxe woning kopen in Baarle-Nassau

Baarle-Nassau biedt een mix van erfgoed, internationale verbindingen en hoogwaardig wonen. Kenmerkende architectuur, culturele rijkdom en persoonlijke vastgoedservices zorgen voor blijvende wereldwijde aantrekkingskracht.