 
	        		Prinsengracht 845, 1017 KB Amsterdam
Op de prachtige Prinsengracht bieden wij dit karakteristieke, volledig gerenoveerde grachtenpand (287m²) aan! De woning is verdeeld over vijf etages en beschikt over vier slaapkamers, drie badkamers en een prachtige ruime living met luxe uitgevoerde open keuken en twee patio’s. De afwerking van dit pand is van buitengewoon hoog niveau, kosten noch moeite zijn gespaard!
Bereikbaarheid
De woning is gelegen in het Centrum van Amsterdam, tussen de Nieuwe Spiegelstraat en de Vijzelstraat. De locatie van het huis is zonder meer centraal te noemen. De PC-Hoofstraat, het Rijksmuseum, de beroemde Negen Straatjes, het Leidseplein, het Rembrandtplein, de Kalverstraat: alles ligt op loopafstand. De directe omgeving biedt een breed en divers aanbod aan culturele voorzieningen, waaronder meerdere bioscopen en Koninklijk Theater Carré, alsmede een ruim aanbod aan horeca, sportscholen en yogastudio’s. Op slechts enkele minuten lopen ligt het sfeervolle Amstelveld en treft u een uitgebreid aanbod van hoge kwaliteit winkels op de Utrechtsestraat en op loopafstand de Amstel en de Stopera. 
De bereikbaarheid met het openbaar vervoer is excellent via de tramlijn 24 op de Vijzelstraat en tramlijn 4 op de Utrechtsestraat. Tevens ligt op zeer korte loopafstand de metrohalte van de Noord-Zuidlijn. Het is dan slechts vier minuten naar Amsterdam Centraal, zes minuten naar zakencentrum de Zuidas en circa twintig minuten naar Schiphol. Ook de uitvalswegen A10 en A2 zijn vanuit dit deel van Amsterdam vlot bereikbaar.
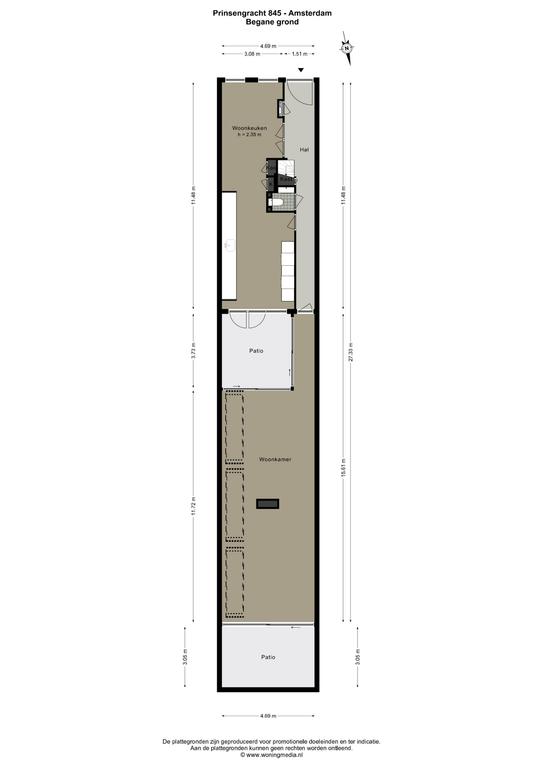
Indeling
Begane grond 
Vanuit de prachtige entree aan de gracht, bereikt u de woning. De hal en gang met marmeren vloer en lambrisering geeft toegang tot alle vertrekken op deze verdieping. De prachtige wandverlichting en muurdecoratie geven de entree bijzonder veel sfeer. 
Middels prachtige stalen deuren met veel glas heeft u toegang tot de woonkeuken. Aan de voorzijde, het eetkamer gedeelte met uitzicht over de gracht middels grote raampartijen. De luxe afgewerkte keuken beschikt over alle denkbare Gaggenau inbouwapparatuur zoals een dubbele koelkast en vriezer, vaatwasser, wijnklimaatkast, (stoom)oven, warmhoud lade, spoelbak met Quooker kraan en inductiekookplaat met ingebouwd afzuigsysteem. Een ruime patio voorziet deze ruimte van bijzonder veel licht en deze patio is te bereiken vanuit zowel de keuken als de woonkamer. 
Middels een gangetje met zorgvuldig bewaard gebleven antieke witjes bereikt u de woonkamer. De woonkamer is uitgevoerd met een microcement vloer en schouw en is voorzien van een grote doorkijk gashaard en via een mooie schuifpui bereikt u de tweede patio welke is voorzien van authentieke tegels. Zowel de beide patio’s als de dakramen voorzien deze ruimte van veel licht. De begane grond heeft in totaal een lengte van maar liefst ruim 30 meter wat echt uniek te noemen is aan de gracht in Amsterdam.
Eerste verdieping 
Middels een trap vanuit de hal bereikt u de eerste verdieping die gebruikt wordt als verlengde van  het woongedeelte. Op de overloop treft een separaat toilet, prachtig afgewerkt met sfeervolle betegeling. Aan de achterzijde zijn alle voorzieningen getroffen om deze in gebruik te nemen tot bijvoorbeeld een Lounge-TV kamer. De ruimte aan de voorzijde heeft een prachtig uitzicht op de gracht en kan uitstekend als werkkamer fungeren.  Aan de achterzijde kijkt u uit op het sedum-groene dak dat op de uitbouw is aangelegd. 
Deze gehele verdieping alsmede de tweede verdieping zijn voorzien van een prachtige Franse eikenhouten vloer uitgevoerd in verschillende breedtes.
Tweede verdieping 
Deze gehele verdieping fungeert als master bedroom. Via de overloop bereikt u de riante slaapkamer die over de gehele verdieping doorloopt. Grote raampartijen aan de voorzijde bieden prachtig uitzicht over de gracht en voorzien de kamer van veel licht. De authentieke balken in het plafond en de gashaard zorgen voor een bijzonder luxe uitstraling. Aan de achterzijde, de luxe afgewerkte badkamer met vrijstaand ligbad, dubbele wastafel met op maat gemaakt meubel, toilet en inloopdouche.
Derde verdieping 
Overloop met trap naar de vierde verdieping en ruimte met de benodigde aansluitingen voor een wasmachine en droger. Aan de voorzijde, de eerste goed bemeten slaapkamer en een tweede ruime slaapkamer treft u aan de achterzijde. Centraal gelegen, de luxe geheel in microcement uitgevoerde badkamer voorzien van ligbad, wastafel met meubel en inloop douche. Het toilet treft u separaat. De badkamer is zowel vanuit de slaapkamer aan de voor- en achterzijde bereikbaar. Zowel op de derde etage als op de vierde etage ligt een Franse eikenhouten vloer uitgevoerd in blokmotief.
Vierde verdieping 
Middels een trap op de overloop op de vierde verdieping bereikt u de zolderetage van de woning. Hier treft u een goed bemeten slaapkamer, voldoende opbergruimte en een badkamer voorzien van een wastafel met meubel, toilet en douche. 
Kortom, een prachtig en hoogwaardig afgewerkt familiehuis in het centrum van Amsterdam!
Bijzonderheden 
-	Gebruiksoppervlakte wonen ca. 287m² (NEN 2580 rapport aanwezig)
-	Volledig en zeer hoogwaardig gerenoveerd
-	Funderingsherstel 2022
-       Rijksmonument
-	Authentieke details
-	Volledige en zeer uitgebreide Domotica installatie 
-	Vier slaapkamers 
-	Drie badkamers 
-	Twee patio’s 
-	Keukenapparatuur Gaggenau 
-	Hoogwaardige uitgevoerde badkamers met authentieke tegel, microcement en Dornbracht kranen
-	Hoogwaardige verlichting van o.a. Flos, Modular, Wevre Ducre, Astro, Casa Gitane
-	Meerdere bergruimtes
-	Alle slaapkamers zijn voorzien van airconditioning 
-	Gelegen op eigen grond, dus géén erfpacht 
-	Oplevering in overleg
Deze informatie is door ons met de nodige zorgvuldigheid samengesteld. Onzerzijds wordt echter geen enkele aansprakelijkheid aanvaard voor enige onvolledigheid, onjuistheid of anderszins, dan wel de gevolgen daarvan. Alle opgegeven maten en oppervlakten zijn indicatief. Koper heeft zijn eigen onderzoek plicht naar alle zaken die voor hem of haar van belang zijn. Met betrekking tot deze woning is de makelaar adviseur van verkoper. Wij adviseren u een deskundige (NVM-)makelaar in te schakelen die u begeleidt bij het aankoopproces. Indien u specifieke wensen heeft omtrent de woning, adviseren wij u deze tijdig kenbaar te maken aan uw aankopend makelaar en hiernaar zelfstandig onderzoek te (laten) doen. Indien u geen deskundige vertegenwoordiger inschakelt, acht u zich volgens de wet deskundige genoeg om alle zaken die van belang zijn te kunnen overzien. Van toepassing zijn de NVM voorwaarden.
