Excellent Magazine werkt intensief samen met Baerz & Co Luxury Homes International, het trefpunt waar exclusieve huizen en veeleisende kopers samenkomen. Hieronder vindt u een geselecteerd aanbod van de meest exclusieve huizen op alle hot-spots in 20 landen rond de Middellandse zee, de Alpen, Mexico en Dubai.

LEIDEN
Galgewater 10 - 2311 VZ
Netherlands

Michiel de Jong RM profile image
Michiel de Jong RM
NVM Register Makelaar - Partner
€1,500,000 k.k.
Living Area
180m2
Plot Size
208m2
Bedrooms
3

Description

Galgewater 10 én 11!

Prachtig grachtenpand met bijzondere tuin en indien gewenst een eigen appartement!

Aan een rustige, autoluwe kade midden in de historische Leidse binnenstad staat dit karakteristieke grachtenpand een woning met uitstraling, geschiedenis en een uniek gevoel van ruimte. Niet alleen de Romeinen stonden hier al rond het begin van de jaartelling, maar op nog geen 100 meter afstand stond Rembrandt's geboortehuis.

Op de plek waar eeuwen geleden de stadsmuren de stad beschermden, kijk je nu uit over de haven met haar historische schepen en monumentale panden. Het huis draagt nog altijd de charme van de vroege 20e en de 17e eeuw, met royale plafondhoogtes en een overvloed aan natuurlijk licht dat door de ramen naar binnen stroomt.

Een buitenkans in de binnenstad is de uitzonderlijk brede, beschutte achtertuin op het zuiden: circa zeven meter diep en maar liefst veertien meter breed. Een ware oase midden in de stad. Perfect voor wie droomt van groen, privacy én ruimte. De tuin beschikt over een twee bergingen en achterom aan twee zijden, een combinatie die maar zelden te vinden is binnen de singels. Binnen zorgen strak gestuukte wanden, oude steentjes en eikenhouten vloerdelen voor een stijlvolle en warme afwerking die past bij de historische ambiance.

Daarnaast beschikt het pand over een zelfstandig appartement, wat dit grachtenpand extra bijzonder en veelzijdig maakt: ideaal voor gasten, werken aan huis of verhuur.

Leiden Centraal en de markt liggen op korte loopafstand. Fiets je liever? Dan bereik je in enkele minuten alle hoeken van de binnenstad én daarbuiten. En wie toch de auto pakt, kan voor de deur parkeren en rijdt binnen enkele minuten de A4 en A44 op, richting de rest van de Randstad.
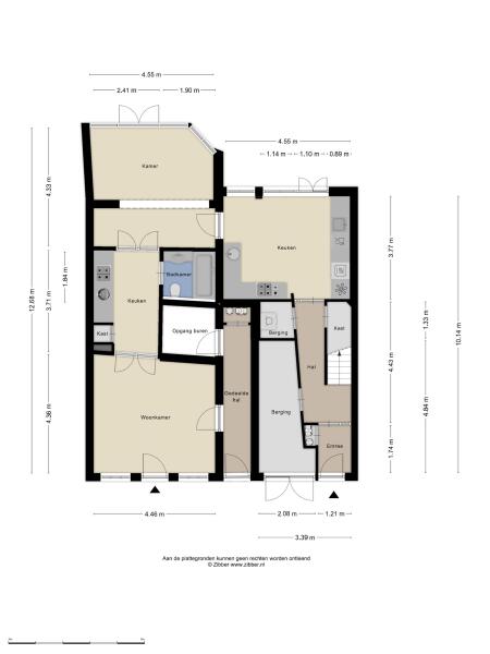
INDELING

Begane grond (nr. 11)
Entree met meterkast. Hal met wasmachineopstelling, trap naar de 1e etage en binnendoor naar de berging en de keuken. Ruime woonkeuken met inbouwapparatuur en openslaande deuren naar de tuin. Doorgang binnendoor naar nr. 10.

1e etage
Overloop met trap naar de 2e etage. Voorkamer met hoge balkenplafonds en prachtig uitzicht over het Galgewater. Achterkamer met openslaande deuren naar het dakterras.

2e etage
Overloop. Ruime slaapkamers met hoge balkenplafonds aan voor- en achterzijde. Moderne badkamer met douche, wc en wastafel.

Bergvliering

Tuin
Achtertuin met veel privacy, schuur, fietsenberging en achterom aan twee zijden.

Appartement (nr. 10)
Kamer voorzijde met authentieke details en tuinkamer met openslaande deuren en binnendoor naar nr. 11. Keuken met inbouwapparatuur en badkamer met ligbad. wastafel en wc.
BIJZONDERHEDEN

- Beschermd stadsgezicht
- Rijksmonument (nr. 10)
- In 2001 onder architectuur gerestaureerd incl. moderne technische installaties en warmte-isolatie waar mogelijk
- Recent (2025) geheel geschilderd aan buitenzijde in historische kleuren
- Niet-bewonersclausule van toepassing
- Ouderdomsclausule van toepassing
- Notaris voor het transport: TeekensKarstens te Leiden

Features

Transfer of ownership
Asking Price
€ 1.500.000 k.k.
Status
beschikbaar
Acceptance
in overleg
Construction
Kind of house
Grachtenpand
Building type
tussenwoning
Construction period
1650
Roof type
samengesteld dak
Bedrooms
3
Bathrooms
2
Surface Areas And Volume
Living Area
180 m2
Other indoor space
0 m2
Exterior space attached to the buildinge
6 m2
External storage space
12 m2
Volume in cubic meters
637 m3
Plot Size
208 m2
Facilities
Mechanische ventilatie
Rookkanaal
Aan rustige weg
In centrum
In woonwijk
Vrij uitzicht
Beschutte ligging
Baerz & Co Property Brochure

Brochure

Videos

Floor Plans

Graal Makelaardij

Rapenburg 4
2311 EV Leiden

info@graalmakelaardij.nl
+31 (0)71 51 61 000

www.graalmakelaardij.nl

Information / Viewing request

Michiel de Jong RM profile image
Michiel de Jong RM
NVM Register Makelaar - Partner

Buying a Luxury Property in Leiden

Leiden offers exceptional heritage, dynamic culture, and curated services, creating an appealing environment for international residents. With refined homes, vibrant academia, and discreet luxury, this canal city delivers a sophisticated lifestyle for a discerning, global community.