Excellent Magazine werkt intensief samen met Baerz & Co Luxury Homes International, het trefpunt waar exclusieve huizen en veeleisende kopers samenkomen. Hieronder vindt u een geselecteerd aanbod van de meest exclusieve huizen op alle hot-spots in 20 landen rond de Middellandse zee, de Alpen, Mexico en Dubai.

LAGE ZWALUWE
Ameroever 64 - 4926 ED
Netherlands

Lennart van Oosterhout profile image
Lennart van Oosterhout
Real Estate Agent
€1,200,000 k.k.
Living Area
255m2
Plot Size
1515m2
Bedrooms
4

Description

Beautiful Detached Villa on the Waterfront with Garden-Facing Living Room and Large Practice/Office Space

This stunning detached villa is beautifully located by the water and features a garden-facing living room and a spacious practice or office space that also opens onto the garden.

The office area (approx. 42 m²) is situated in the wing that was added in 2008. With minor adjustments, this space can easily be converted into a separate living unit. The property is future-proof, featuring a bedroom and bathroom on the ground floor.

The home is in excellent condition and very well maintained, equipped with two heat pumps and 18 solar panels.

The location is ideal—on the edge of the charming village of Lage Zwaluwe, in a quiet residential villa district. The marina, the beautiful Biesbosch National Park, and many cycling routes are all nearby. Highways to Breda and the Randstad region can be reached within minutes.

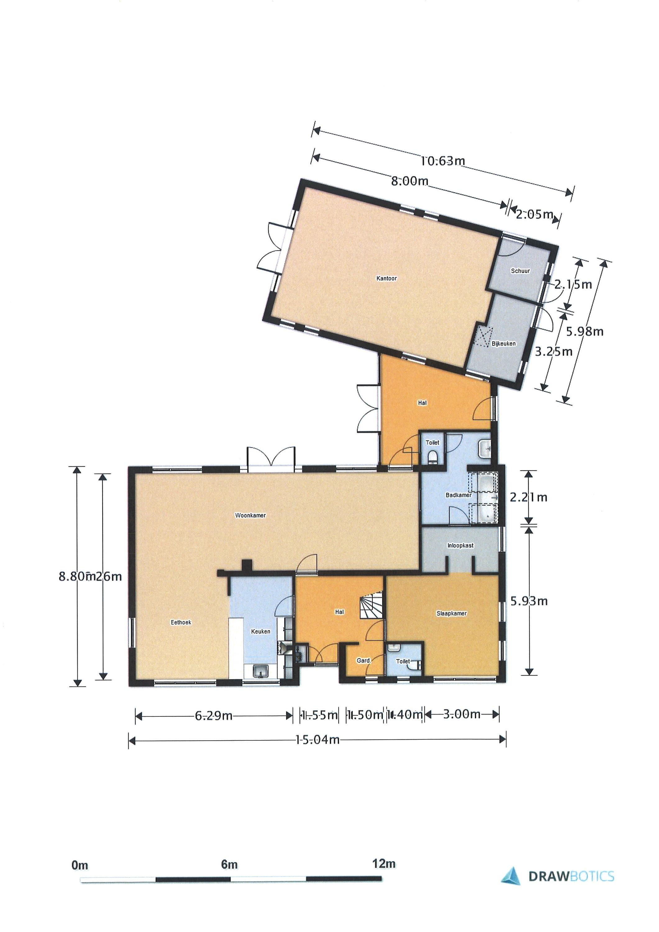
GROUND FLOOR

ENTRANCE HALL
Entrance hall (approx. 3.45 x 3.55 m) with meter cupboard (14 circuits + earth leakage switch), cloakroom, guest toilet with wall-mounted toilet and sink, staircase to the first floor, and access to:

BEDROOM I
Spacious bedroom (approx. 4.50 x 4.15 m + 3.00 x 1.95 m) with custom-built wardrobes. Direct access to:

BATHROOM
Luxury bathroom (approx. 3.85 x 2.95 m) featuring a bathtub, vanity unit, a large walk-in shower (partially finished in natural stone) with both rain and hand showers, and a designer radiator.

From the entrance hall, access to:

LIVING ROOM
Garden-facing living room consisting of a lounge area (approx. 4.00 x 7.30 m) and a dining area (approx. 4.00 x 4.05 m) with a fireplace and French doors opening onto the garden. Large windows provide beautiful natural light and a seamless connection to the outdoors.

KITCHEN / DINING AREA
Kitchen and dining area (approx. 6.30 x 4.05 m) with a luxurious U-shaped layout. It includes a hardstone countertop with sink, a 90 cm wide “Lacanche” gas range (5-burner with multiple oven compartments), refrigerator, freezer, microwave, dishwasher, and various upper and lower cabinets.

OFFICE / WORKROOM
Spacious workroom (approx. 5.40 x 7.85 m) with beautifully crafted custom wall cabinetry and French doors opening onto the garden. This room offers stunning views over the garden and adjacent water.

Thanks to the ceiling height of approx. 5.40 m, the space feels very open and airy. This room is multifunctional and ideal for use as an office or practice at home (with private entrance!), but could also be easily adapted for guest accommodation or care-related living.

INTERMEDIATE HALLWAY
With private entrance;

TOILET
Toilet with wall-mounted unit and sink;

UTILITY ROOM
Utility room (approx. 3.15 x 2.05 m) with neat fittings including a stainless steel sink, refrigerator, and cabinetry.

Hatch access to:

FIRST FLOOR

ATTIC STORAGE
Storage attic (approx. 5.50 x 5.40 m floor area).

LANDING
Spacious, light landing (with additional storage) giving access to:

BEDROOM II
Front bedroom (approx. 4.05/2.90 x 4.40 m) with French balcony and storage space behind the knee walls;

BEDROOM III
Rear bedroom (approx. 3.45 x 3.00 m);

BEDROOM IV
Another rear bedroom (approx. 4.15 x 4.45 m) with storage space behind the knee walls;

BATHROOM
Bathroom (approx. 3.45 x 1.10 m) with shower cabin, sink, and toilet;

Built-in closet housing the central heating combi-boiler (ATAG "Blue Angel") and connections for laundry appliances.

GARDEN

The beautifully landscaped garden features a lawn (with irrigation system), a wide variety of plants, and offers complete privacy. At the rear of the house, a large pond ensures that there are no rear neighbors.

Multiple terraces have been created, including a spacious terrace directly on the water and a large hardstone-paved terrace next to the house, partially shaded by plane trees. The front/side garden also features a decorative pond.

Additionally, an electric vehicle charging point is installed.

STORAGE

Wooden garden shed (approx. 3.00 x 3.00 m)

Indoor storage room (approx. 2.05 x 2.20 m)

Special Features

Solar panels

Features

Transfer of ownership
Asking Price
€ 1.200.000 k.k.
Status
beschikbaar
Acceptance
in overleg
Construction
Kind of house
Villa
Building type
vrijstaande woning
Construction period
1977
Energy rating
B
Roof type
zadeldak
Bedrooms
4
Bathrooms
2
Surface Areas And Volume
Living Area
255 m2
Other indoor space
5 m2
External storage space
9 m2
Volume in cubic meters
900 m3
Plot Size
1515 m2
Facilities
Rookkanaal
Frans balkon
Zonnepanelen
Aan water
Aan park
Aan rustige weg
Vrij uitzicht
Aan vaarwater
Baerz & Co Property Brochure

Brochure

Videos

Floor Plans

Storimans en Partners

Ginnekenweg 161
4818 JD Breda

lvanoosterhout@storimansenpartners.nl
+31 76 522 60 90

www.storimansenpartners.nl

Information / Viewing request

Lennart van Oosterhout profile image
Lennart van Oosterhout
Real Estate Agent