Excellent Magazine werkt intensief samen met Baerz & Co Luxury Homes International, het trefpunt waar exclusieve huizen en veeleisende kopers samenkomen. Hieronder vindt u een geselecteerd aanbod van de meest exclusieve huizen op alle hot-spots in 20 landen rond de Middellandse zee, de Alpen, Mexico en Dubai.

DORDRECHT
Buiten Walevest 124 - 3311 AD
Netherlands

Johan Oosterlee profile image
Johan Oosterlee
Director/owner
€895,000 k.k.
Living Area
202m2
Plot Size
N/A
Bedrooms
3

Description

Over 200 m² of Exceptional Living Space in a Prime Location!

Situated in one of the most coveted locations along the river Oude Maas, at the distinguished entrance to the Nieuwe Haven, this exceptional, fully modernised and meticulously renovated apartment offers a rare blend of historical elegance and contemporary sophistication. Spread across two expansive levels—with a private ground-floor entrance and a breathtaking rooftop terrace of approximately 68 m² crowning the residence—this Municipal Monument embodies refined living at its finest. The property has been tastefully finished throughout and benefits from an A-rated energy label.
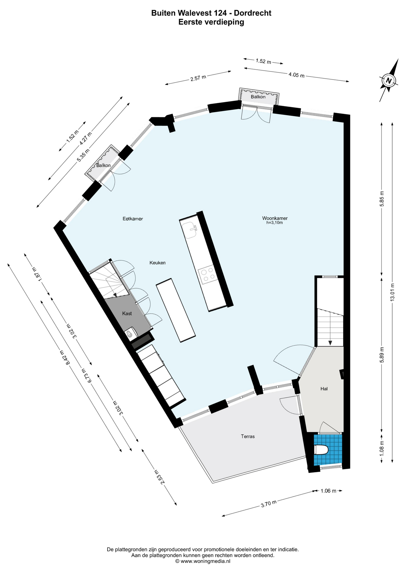
The first floor reveals an impressive living environment: a grand, light-filled reception room overlooking the river, an exquisite open-plan kitchen, and a delightful east-facing morning terrace at the rear. The second floor comprises the luxurious bathroom, three bedrooms, two walk-in wardrobes, and the fixed staircase that leads to the rooftop terrace—an outdoor space of remarkable scale and an extraordinary panoramic view that is truly one of a kind.

We warmly invite you to arrange a viewing and experience the full charm and distinction of this exceptional apartment.

Key Features
- Official cadastral reference: Municipality of Dordrecht, Section F, Number 1866.
- Listed Municipal Monument, located within a protected historic cityscape.
- Living area approx. 202 m²; volume approx. 684 m³; associated outdoor space approx. 80 m².
- Energy label A.
- Fully equipped with double glazing.
- Roof renewed and insulated in 2024.
- Rooftop terrace with permit.
Ground Floor
Entrance
A spacious entrance hall on the ground floor provides a refined welcome and grants access to the staircase leading to the main living level.
First Floor
Vestibule
The vestibule offers access to both the terrace and the guest lavatory.

Guest Lavatory
Fully tiled and fitted with a wall-mounted toilet, finished with premium materials.

Terrace — approx. 9 m²
An intimate, east-facing terrace—perfect for enjoying a morning coffee while overlooking the mature greenery and the historic city centre.

Living Room & Kitchen — approx. 90 m²
The entirety of this floor forms an expansive, flowing living space where light, comfort and views converge harmoniously.
The kitchen, positioned on the terrace side, is appointed to a luxury standard and equipped with high-end built-in appliances, including a separate refrigerator and freezer, dishwasher, Quooker hot-water tap, induction cooktop with integrated extractor, and combination microwave oven. An air-conditioning unit ensures optimal climate comfort.
The dining and lounge areas are situated on the river side, where the floorplan elegantly fans out towards the water, resulting in an exceptional sense of space and remarkable natural light. The panoramic view of the river and its ever-changing maritime activity is nothing short of spectacular. Two charming balconies are accessed via French doors.
The entire floor, including the kitchen area, features a premium woven-vinyl floor finish. A beautifully designed wall of cabinetry conceals the doorway to the staircase leading to the second floor.
Second Floor
Landing
A generous central landing with dedicated space for a washing machine and dryer, and the staircase leading to the rooftop terrace.

Bathroom — approx. 3.17 × 3.28 m
A luxurious bathroom benefiting from beautiful natural light, equipped with a bathtub, walk-in shower, and elegant vanity unit. A built-in cupboard houses the central heating combi-boiler.

Lavatory
Separate toilet room.

Bedroom 1 — approx. 4.17 × 4.11 m
A spacious bedroom with captivating river views, featuring two walk-in wardrobes of approximately 4 m² and 6 m², and equipped with air conditioning.

Bedroom 2 — approx. 2.82 × 3.22 m
A comfortable second bedroom.

Bedroom 3 — approx. 5.99 × 2.51 m
A third bedroom, also benefiting from a river view.
Third Floor
Rooftop Terrace — approx. 68 m²
Words scarcely do justice to the panoramic view from this extraordinary terrace: the river’s expanse, the superb sun orientation, and the magnificent skyline of Dordrecht’s historic inner city form a truly unforgettable setting. This is a place that must be experienced in person.
All stated measurements (m² and m³) have been established in accordance with the NVM industry measuring guidelines based on NEN2580:2007 NL. Although the information in this brochure has been compiled with the utmost care, no rights may be derived from its content. OZP Makelaars accepts no liability; changes reserved.

Features

Air conditioning
Transfer of ownership
Asking Price
€ 895.000 k.k.
Status
beschikbaar
Acceptance
in overleg
Construction
Kind of house
Bovenwoning
Building type
appartement
Construction period
1901
Energy rating
A
Roof type
plat dak
Bedrooms
3
Bathrooms
1
Surface Areas And Volume
Living Area
202 m2
Other indoor space
0 m2
Exterior space attached to the buildinge
80 m2
Volume in cubic meters
684 m3
Facilities
Airconditioning
Aan water
In centrum
Vrij uitzicht
Aan vaarwater
Baerz & Co Property Brochure

Brochure

Videos

Floor Plans

Kolpa-OZP Makelaars

Vissersdijk Beneden 25
3319 GW Dordrecht

oosterlee@ozp-makelaars.nl
+31 786351753

www.kolpa-ozp.nl

Information / Viewing request

Johan Oosterlee profile image
Johan Oosterlee
Director/owner

Buying a Luxury Property in Dordrecht

Dordrecht offers a harmonious blend of cultural heritage, refined living, and tailored services. Its discreet community, elegantly restored homes, and welcoming international outlook make it an exceptional destination for those seeking both privacy and sophistication.