Excellent Magazine werkt intensief samen met Baerz & Co Luxury Homes International, het trefpunt waar exclusieve huizen en veeleisende kopers samenkomen. Hieronder vindt u een geselecteerd aanbod van de meest exclusieve huizen op alle hot-spots in 20 landen rond de Middellandse zee, de Alpen, Mexico en Dubai.

DE HOEF
Eerste Hoefweg 3 B - 1426 AK
Netherlands

John Korver profile image
John Korver
Real estate agent
€1,469,000 k.k.
Living Area
304m2
Plot Size
2125m2
Bedrooms
7

Description

Exclusive and Exceptional: this spacious elevated villa offers a unique living experience with generous interiors and panoramic views – as if you were living on your very own mound!

On the edge of the picturesque village of De Hoef, hidden amidst greenery and bordering open waterways, lies this extraordinary, very spacious detached villa. A solidly built home with character, surrounded by beautifully landscaped gardens featuring a private jetty and harbor, a greenhouse, and a charming garden pavilion – a true outdoor paradise where peace, space, and nature converge. Living by the water with sweeping views of the polder landscape – an oasis of tranquility just a stone’s throw from cities such as Amsterdam and Utrecht.

Inside, you’ll find a surprisingly spacious and light-filled home with multiple bedrooms, a basement with office space, and an expansive garage accommodating at least five cars. The property is fully pile-founded and offers comfort and quality in every corner. And the view? A daily masterpiece of swaying reeds, grazing cows, and vast Dutch skies. Despite its idyllic rural setting, Amsterdam, Utrecht, The Hague, and Schiphol Airport are within easy reach. And for water sports enthusiasts: the Vinkeveense Plassen are accessible by boat. Here, you truly live in the countryside – without compromising on accessibility or comfort.

A stylish entrance that makes an immediate impression!

A charming little bridge takes you to the gated entrance of the estate. The gate is both elegant and practical: a wide double gate for vehicles and a separate pedestrian door provide both welcoming and functional access. The pile-founded driveway, crafted in high-quality concrete with a stylish design, leads along the side of the villa. First, you’ll pass the ramp that provides access to the integral garage – ideal for everyday use or as a practical workspace. Further along lies the main entrance, also positioned at the side, while the driveway continues seamlessly into the rear garden. An entrance with true allure, perfectly matching the solid and refined character of this remarkable villa.

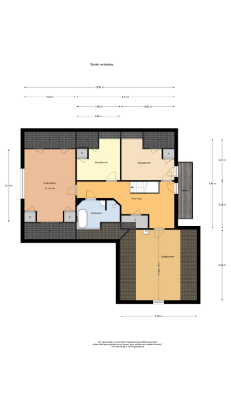
Ground Floor

Comfort, space, and style – the heart of the home.

A broad pathway leads you to the elegant front entrance, distinguished by a large window beside the door with playful divided glazing. The front door opens into an impressive, spacious reception hall that immediately reflects the home’s solid quality. Here, a beautiful hardwood staircase leads both upstairs and to the basement, while doors connect to the various rooms on this floor.

The hall provides access to a large, light-tiled bathroom featuring a shower cabin, bathtub, toilet, vanity unit with mirrored cabinet, and mechanical ventilation. This bathroom is accessible both from the central hall and directly from the adjacent bedroom – highly practical. The adjoining bedroom is generously proportioned, with four operable windows overlooking both the driveway and rear garden. A solid wooden sliding door gives access to a comfortable walk-in closet with window.

Opposite the bathroom is a spacious separate WC with washbasin, tiled in the same style and equipped with a window for natural ventilation. Next to it is the meter cupboard, neatly tucked away. To the right of the hall, a second, slightly smaller bedroom features two large windows overlooking the front garden. This versatile room could serve as an office, guest room, or playroom. There is also useful cloakroom space under the stairs.

A handsome wooden-glass partition with matching door opens into the atmospheric L-shaped living room. Expansive windows flood the space with daylight and frame views of the front and side gardens. A marble hearth with a closable wood-burning fireplace forms the inviting centerpiece of the lounge. At the rear, ample space is available for a large dining table, directly beside the French doors opening onto the elevated, pile-founded terrace – with breathtaking views across the garden, water, and polder landscape.

An elegant archway connects the dining area to the bright, spacious kitchen, which features twin casement windows overlooking the rear garden. The kitchen is fitted with ample cabinetry and integrated appliances: dishwasher, oven, electric hob with extractor, and fridge/freezer. Adjoining is the practical utility room with built-in cupboard (housing the underfloor heating distribution system), additional storage, laundry connections, an extra sink, and a door to the terrace.

The entire ground floor is laid with tiled flooring with underfloor heating. All window frames are solid hardwood, and all windows are fitted with either wooden shutters or roller blinds – a stylish blend of comfort and classic charm.

A ground floor that offers it all: space, light, luxury, and a seamless connection with outdoor living.

First Floor

Comfort, space, and views – a versatile and characterful upper level.

The robust open hardwood staircase leads to the first floor, where a spacious landing opens onto several charming and functional rooms. On one side are two mirrored bedrooms, both with dormer windows and large windows overlooking the driveway. Each includes a built-in wardrobe and eaves storage. One of these rooms also has access to a lovely balcony at the side of the house – the perfect spot to enjoy a peaceful morning coffee in the fresh air. This balcony is also accessible via a second door from the landing.

At the rear, reached via a small step down from the landing, lies a generous room with a charming pitched roof and garden views. This space houses the central heating installation but would also serve beautifully as a hobby room, study, or playroom – multifunctional and inviting.

Centrally located on the landing are a spacious storage cupboard and the large bathroom, finished with white and blue tiles. This bathroom is fully equipped with bathtub, WC, vanity unit with mirror, and a generous walk-in shower. Thanks to the dormer with twin windows, daylight pours in, offering sweeping views across the rear garden. Finally, another spacious bedroom lies beside the bathroom, with a large window to the side and two built-in wardrobes plus eaves storage. As throughout the home, all window frames are crafted from premium hardwood, contributing to the robust, durable character of the property.

An upper floor that exudes peace, space, and flexibility – perfect for family living, guests, or working from home in comfort.

Basement

Versatile basement with office, storage, and a vast garage.

Descending via the solid hardwood staircase from the central hall, the basement reveals itself as a highly functional and surprisingly spacious level. All rooms are finished with tiled floors, offering endless possibilities for living or working.

Immediately upon entering, two doors present themselves: one leads to a space originally intended as a WC, but equally suited for use as storage, pantry, or utility space. The other opens into a large storage room, ideal for supplies, tools, or seasonal items.

Further on lies a very generous room currently used as an office. This bright and tranquil workspace includes a built-in cupboard, once used as a wine cellar – a charming historic touch. Multifunctional in nature, this room could serve equally well as an atelier, playroom, or extra bedroom, with daylight and natural ventilation present.

Another door from the hall opens into the impressive garage. With a robust concrete floor, natural light via a window well, and capacity for at least five vehicles, this is a dream come true for car enthusiasts, hobbyists, or entrepreneurs. Accessible via a manually operated roller door and a separate side entrance, the garage also houses several technical features, including the central vacuum system (connected to inlets throughout the house) and the inverter for the rooftop solar panels.

A basement that excels in space, practicality, and versatility – a valuable addition to the living comfort of this exceptional villa.

Garden

Outdoor living at its finest – peace, space, and views in a green oasis.

The beautifully landscaped garden surrounding the villa is a true haven for nature lovers and outdoor enthusiasts. The front garden is elegantly arranged with gravel and mature planting, lending a calm, refined appearance in harmony with the home’s charm.

The pile-founded driveway extends into the rear garden, where a slipway allows for easy launching and moving of boats. The rear garden is truly spectacular: a vast lawn provides open space with sweeping views of the water and polder landscape – an everyday feeling of freedom and serenity.

To the left lies a greenhouse on a solid foundation, perfect for growing your own vegetables, herbs, or flowers. At the water’s edge, a private jetty with harbor awaits – ideal for leisure boating, a sloop, or simply relaxing with your feet above the water. From here, you can navigate to the Vinkeveense Plassen or enjoy a scenic route along the Kromme Mijdrecht to the River Amstel.

Deeper into the garden stands a charming pavilion – an idyllic spot for morning coffee in the sunshine or a good book in the afternoon. The garden also offers ample space for installing a swimming pool – a valuable addition with ever-warming summers.

Behind the house, a spacious terrace invites you to create a seating area, while steps lead up to the elevated, pile-founded terrace adjoining the house. Enclosed with a glass windscreen, this sheltered spot is perfect for al fresco dining or lounging, with breathtaking views over the garden, water, and Dutch landscape.

A garden that not only invites you to enjoy, but also provides endless space for dreams, plans, and outdoor living.

Highlights of this unique villa in De Hoef:

Waterfront living with breathtaking polder views – peace and space every day

Private jetty with harbor, ideal for boat owners and lovers of waterside living

Beautifully landscaped gardens with greenhouse, charming pavilion, and space for a swimming pool

Spacious, light-filled living room with wood-burning fireplace and direct access to the elevated terrace with windscreen

Fully pile-founded villa and terraces for long-term solidity and durability

Basement with multifunctional office and vast garage for at least five cars

Generous kitchen and utility room with ample storage, appliances, and direct terrace access

No fewer than six (bed)rooms spread over three floors – ideal for families, guests, or home working

Perfect location: rural living in picturesque De Hoef, yet close to Amsterdam, Utrecht, The Hague, and Schiphol

By boat to the Vinkeveense Plassen – water sports literally at your doorstep

Gross floor area: 536 m², of which 304 m² living space and 106 m² other internal areas

Volume: 1,350 m³

Energy label A

A unique combination of peace, space, comfort, and accessibility – a rare opportunity for those seeking something truly special.

Would you like to experience the atmosphere, take in the views, and discover all the possibilities for yourself? Schedule a viewing today. We would be delighted to show you every facet of this dream home – make an appointment and prepare to be surprised. See you by the water in De Hoef!

Location

The setting is simply excellent. Far enough from the road to enjoy tranquility in a lush, watery environment, yet close enough if you like some life around you.

De Hoef is a small village (approx. 900 inhabitants) in the municipality of De Ronde Venen, characterized by varied ribbon development along the banks of the River Kromme Mijdrecht, interspersed with small clusters of homes. The village offers a primary school, an active sports club (football, handball), as well as billiards and theater groups at the community center. The community center also features a small sports hall hosting various activities.

De Hoef has an active village committee that organizes events such as “De Hoef Sportief.” There is also a cozy local restaurant – Pannenkoekenhuis De Strooppot – serving delicious (specialty) pancakes and offering facilities for parties and gatherings, located less than a 10-minute walk from the villa.

The centers of Mijdrecht, Uithoorn, and Nieuwveen are all close by, while the surrounding open polders provide endless opportunities for cycling, walking, and boating.

Features

Solar panels
Transfer of ownership
Asking Price
€ 1.469.000 k.k.
Status
verkocht onder voorbehoud
Acceptance
in overleg
Construction
Kind of house
Villa
Building type
vrijstaande woning
Construction period
1993
Energy rating
A
Roof type
zadeldak
Bedrooms
7
Bathrooms
2
Surface Areas And Volume
Living Area
304 m2
Other indoor space
106 m2
Exterior space attached to the buildinge
5 m2
External storage space
19 m2
Volume in cubic meters
1350 m3
Plot Size
2125 m2
Facilities
Mechanische ventilatie
Rookkanaal
Schuifpui
Zonnepanelen
Natuurlijke ventilatie
Aan rustige weg
Vrij uitzicht
Beschutte ligging
Buiten bebouwde kom
Aan vaarwater
Landelijk gelegen
Baerz & Co Property Brochure

Brochure

Videos

Floor Plans

Korver makelaars

Stationsweg 12
3641RG Mijdrecht

welkom@korvermakelaars.nl
+31 297 25 04 21

www.korvermakelaars.nl

Information / Viewing request

John Korver profile image
John Korver
Real estate agent

Buying a Luxury Property in De Hoef

De Hoef offers a discreet, community-focused lifestyle set within the Dutch countryside. Residents enjoy refined properties, riverside serenity, and access to excellent services, making it a desirable destination for international buyers and investors.