Excellent Magazine werkt intensief samen met Baerz & Co Luxury Homes International, het trefpunt waar exclusieve huizen en veeleisende kopers samenkomen. Hieronder vindt u een geselecteerd aanbod van de meest exclusieve huizen op alle hot-spots in 20 landen rond de Middellandse zee, de Alpen, Mexico en Dubai.

Villa for sale in BERGSCHENHOEK

BERGSCHENHOEK Huig Maaskantstraat 3 - 2662 HC The Netherlands


Dominique Blom profile image
Dominique Blom
Real Estate Agent
+31 107850833
dominique@dbmakelaars.nl

DB Makelaars
Dorpsstraat 79
2661 CE Bergschenhoek
NETHERLANDS
+31 107850833
www.dbmakelaars.nl
info@dbmakelaars.nl

Living area
171m2
Plot size
256m2
Bedrooms
4

Description

Modern 4-bedroom family home in the popular Parkzoom area with private parking and a sunny Northwest-facing garden.

In the popular and family-friendly neighborhood Parkzoom, we are pleased to offer this well-maintained and modern family home. The property features a private parking space, four bedrooms, and a beautifully landscaped garden facing Northwest, perfect for afternoon and evening sun.

The location is ideal: just a short distance from both Bergschenhoek and Berkel en Rodenrijs town centers. In the immediate surroundings, you’ll find several playgrounds, daycare centers and primary schools.
Major cities (Rotterdam, Delft, Zoetermeer, and The Hague) are easily accessible by both public transport (bus and RandstadRail) and by car via the main roads (A12, A13, N209, and N472).

Layout

Ground floor:
Entrance hall with a modern toilet (including washbasin), storage space, staircase to the first floor, and access to the living room with open kitchen.
The luxury kitchen, located at the front of the home, is equipped with built-in appliances including a dishwasher, extractor hood, induction cooktop, combination microwave, and oven.
The bright, garden-facing living room features a practical storage cupboard under the stairs and French doors opening onto the backyard.

The beautifully landscaped backyard, facing northwest, is ideal for enjoying the afternoon and evening sun.

The ground floor is finished with an elegant herringbone PVC floor and features comfortable underfloor heating.

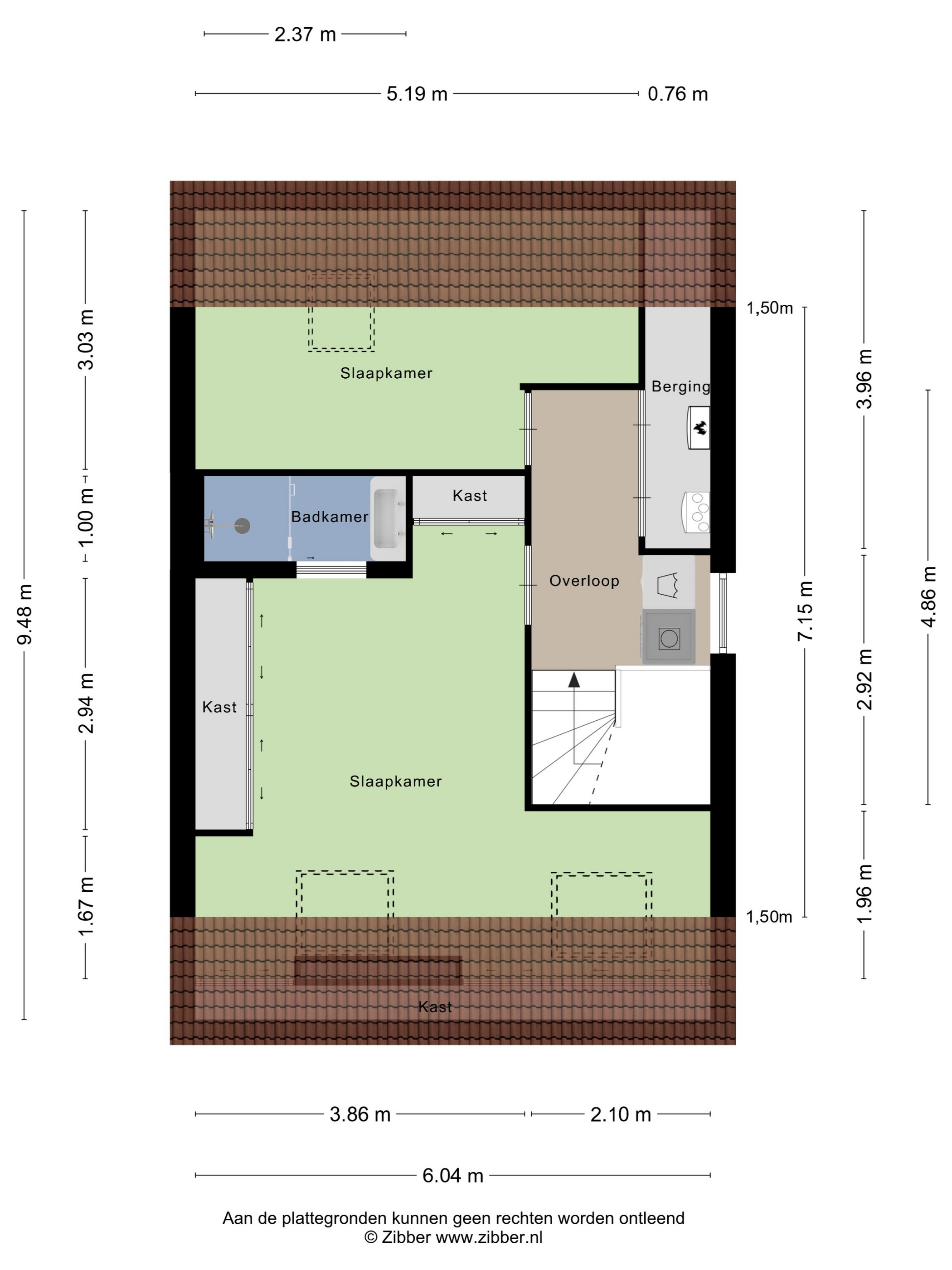
First floor:
Landing with stairs to the second floor and access to the bathroom, two bedrooms, and a second toilet.
Bedroom 1 is located at the rear and features a built-in wardrobe.
Bedroom 2, situated at the front, also includes a built-in wardrobe and a French balcony.
The modern bathroom is equipped with a walk-in shower, washbasin with vanity unit, and bathtub.
This floor is finished with carpet flooring.

Second floor:
Landing with access to the third and fourth bedrooms, laundry area, and second bathroom.
Bedroom 3, located at the front, features two Velux skylights and a built-in closet housing the central heating system. This room also benefits from its own bathroom with a walk-in shower and washbasin unit.
Bedroom 4, located at the rear, has a skylight and practical knee-wall storage space.

The washing machine and dryer connections are conveniently located on the landing.
This floor is also finished with carpet flooring.

Particulars:
- Built in 2017
- Bright, garden-facing living room
- Modern kitchen and bathrooms
- Equipped with 24 solar panels
- Within walking distance of several playgrounds, primary schools and daycare centers

We warmly invite you to come and view this wonderful family home in person.

All information provided should be regarded as an invitation to make an offer or enter into negotiations. No rights can be derived from this property description.

Additional Information

All information provided must be regarded as an invitation to make an offer or to enter negotiations. The texts and impressions are intended to give a good impression of the property. The utmost care has been taken with the content; nevertheless, all information is expressly subject to change. No rights can be derived from this property information.

Purchase agreement legally binding only after signature:
An oral agreement between the private seller and the private buyer is not legally binding. In other words: there is no sale. A purchase is only legally valid once both the private seller and the private buyer have signed the purchase agreement. This follows from Article 7:2 of the Dutch Civil Code. A confirmation of the oral agreement by e-mail or a draft purchase agreement sent is not considered a "signed purchase agreement."

Measurement Instruction Disclaimer:
The property has been measured in accordance with the industry-wide Measurement Instruction (BBMI). The Measurement Instruction is intended to apply a more uniform method of measuring to provide an indication of the usable surface area. The Measurement Instruction does not completely exclude differences in measurement results, for example, due to interpretation differences, rounding, or limitations during the measurement process.

We are the seller’s agent. We advise you to bring your own real estate agent to represent your interests when purchasing your future home!

Features

Transfer of ownership
price
€ 825.000 k.k.
Status
onder bod
Acceptance
in overleg
Construction
Kind of house
Eengezinswoning
Building type
twee onder een kapwoning
Construction period
2008
Energy rating
A
Roof type
zadeldak
Bedrooms
4
Bathrooms
2
Surface Areas And Volume
Living area
171 m2
Other indoor space
18 m2
Volume in cubic meters
668 m3
Plot size
256 m2
facilities
Alarminstallatie
Frans balkon
Zonnepanelen
In woonwijk
Baerz & Co Property Brochure

Brochure

Information / Viewing request

Videos

Photos

Floor Plans