Excellent Magazine werkt intensief samen met Baerz & Co Luxury Homes International, het trefpunt waar exclusieve huizen en veeleisende kopers samenkomen. Hieronder vindt u een geselecteerd aanbod van de meest exclusieve huizen op alle hot-spots in 20 landen rond de Middellandse zee, de Alpen, Mexico en Dubai.

AMSTERDAM
Bernard Zweerskade 22 - 1077 VA
Netherlands

Steijn Schothorst profile image
Steijn Schothorst
Real Estate Agent
€1,400,000 k.k.
Living Area
223m2
Plot Size
N/A
Bedrooms
5

Description

Bernard Zweerskade 22, 1077 VA Amsterdam

Spacious double ground-floor apartment of 113 m² with a terrace and a sunny garden of 21 m², located on the stately Bernard Zweerskade in Amsterdam-Zuid. This characteristic property features a private entrance, a generous through living room, and two spacious bedrooms. The 12 m² terrace spanning the full width of the home forms a beautiful transition to the rear garden, a wonderful place to enjoy complete peace and quiet.

The property is offered in shell condition, providing a unique opportunity to renovate entirely according to your own wishes and vision. In addition, an irrevocable permit has already been granted for enlarging the basement, allowing the living area to be significantly increased to approximately 223 m². A distinctive property with plenty of potential in a highly desirable location.

Location and accessibility

Bernard Zweerskade is located in the sought-after and green district of Amsterdam-Zuid in Amsterdam. This wide, stately quay follows the course of the Noorder Amstelkanaal and is characterized by spacious upper-floor residences and apartments with views over the water. The street has a calm character and, thanks to relatively limited car traffic, offers a pleasant and relaxed atmosphere. At the same time, Bernard Zweerskade is situated a short distance from vibrant city amenities, creating the perfect combination of comfortable living in a peaceful environment with all the dynamics of the city within easy reach.

In the immediate vicinity there are various shops, specialty stores, and restaurants, including around Beethovenstraat and Stadionplein. For relaxation and recreation, the green Beatrixpark and the expansive Amsterdamse Bos are within cycling distance. Cultural and business hotspots such as the Zuidas are also nearby, making the location attractive for both families and professionals. The presence of several (international) schools and sports clubs further strengthens the residential character of the neighborhood.

In terms of accessibility, Bernard Zweerskade is very well connected. Amsterdam Zuid Station is located a short distance away and offers fast train, metro, and tram connections, including direct routes to Schiphol Airport and the city center. By car, the A10 ring road can be reached within minutes. In addition, several tram and bus lines in the nearby area provide convenient connections to other parts of Amsterdam.

Layout

This property has its own private entrance on the ground floor. Upon entering, you arrive in the vestibule, after which you are welcomed into a spacious hallway that provides access to all rooms of the property and therefore forms a central connection.

On the right side is the generous, elongated through living room that stretches from the front to the rear of the home. Thanks to the large windows on both sides, the space is flooded with natural daylight, creating a bright and pleasant living environment.

At the rear of the property there are two spacious bedrooms, one at the front and one at the rear. Both rooms are generously sized and also benefit from plenty of natural light through the large windows.

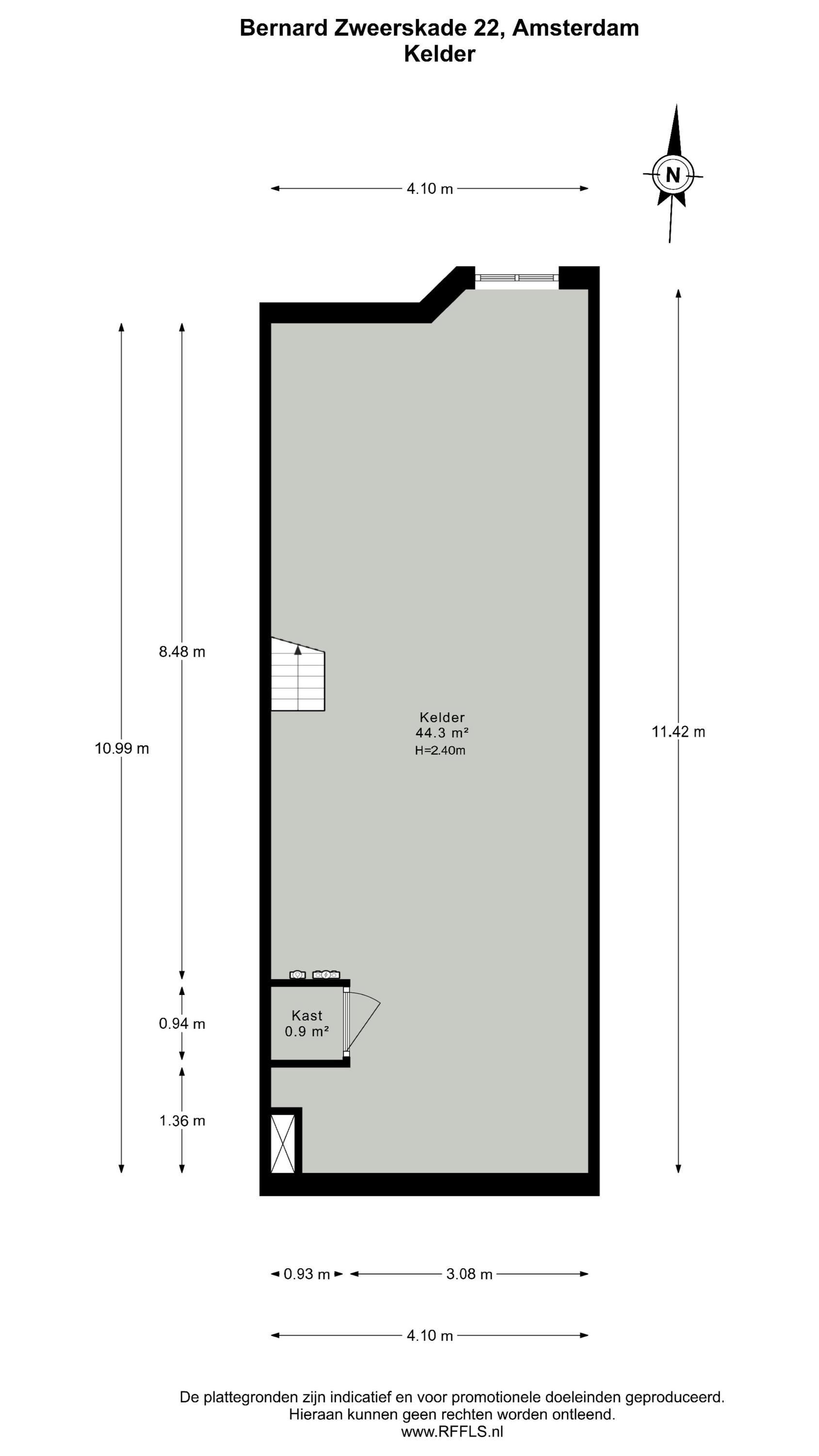
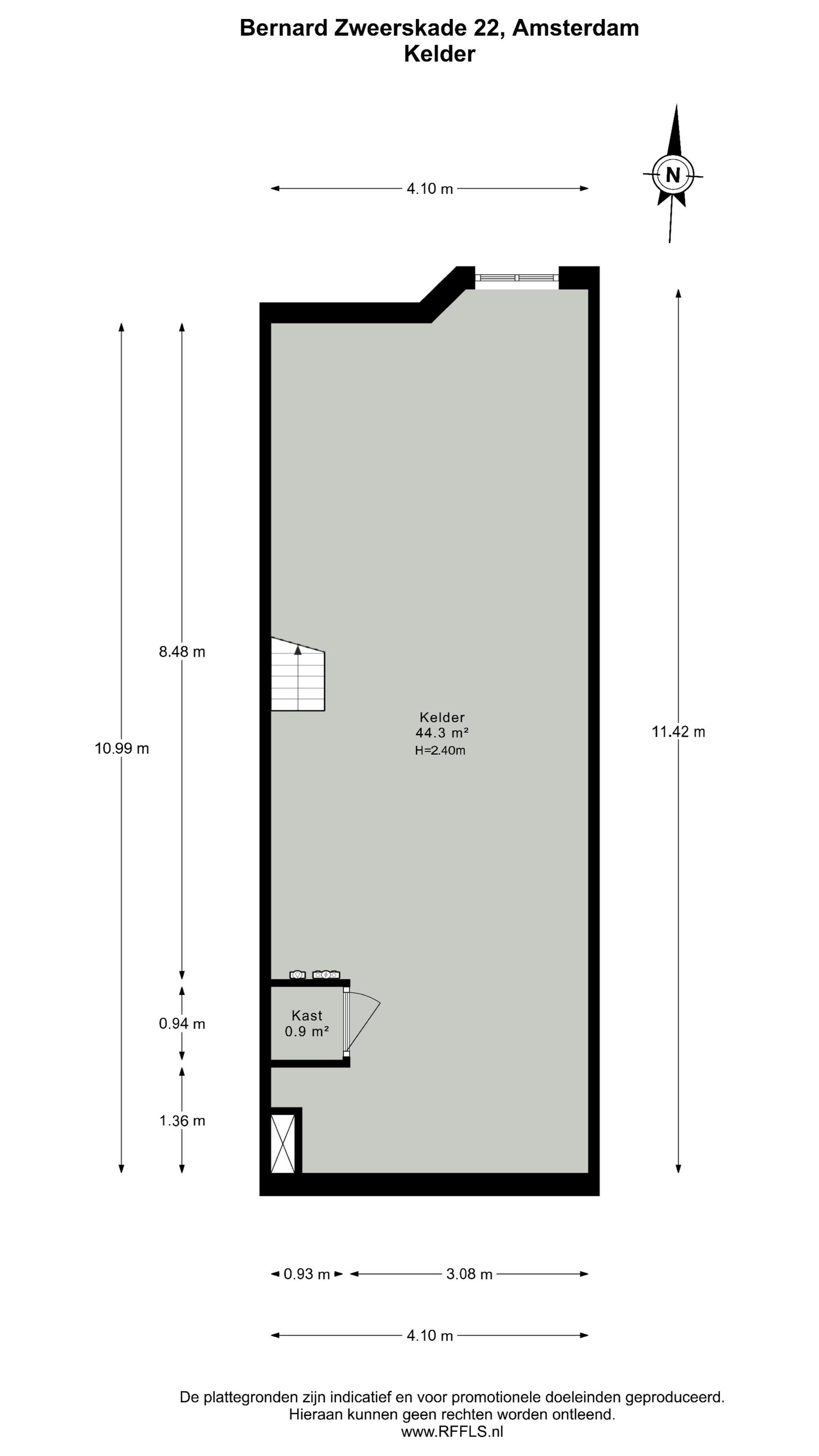
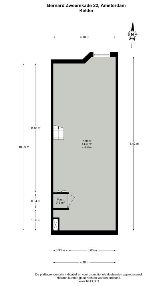
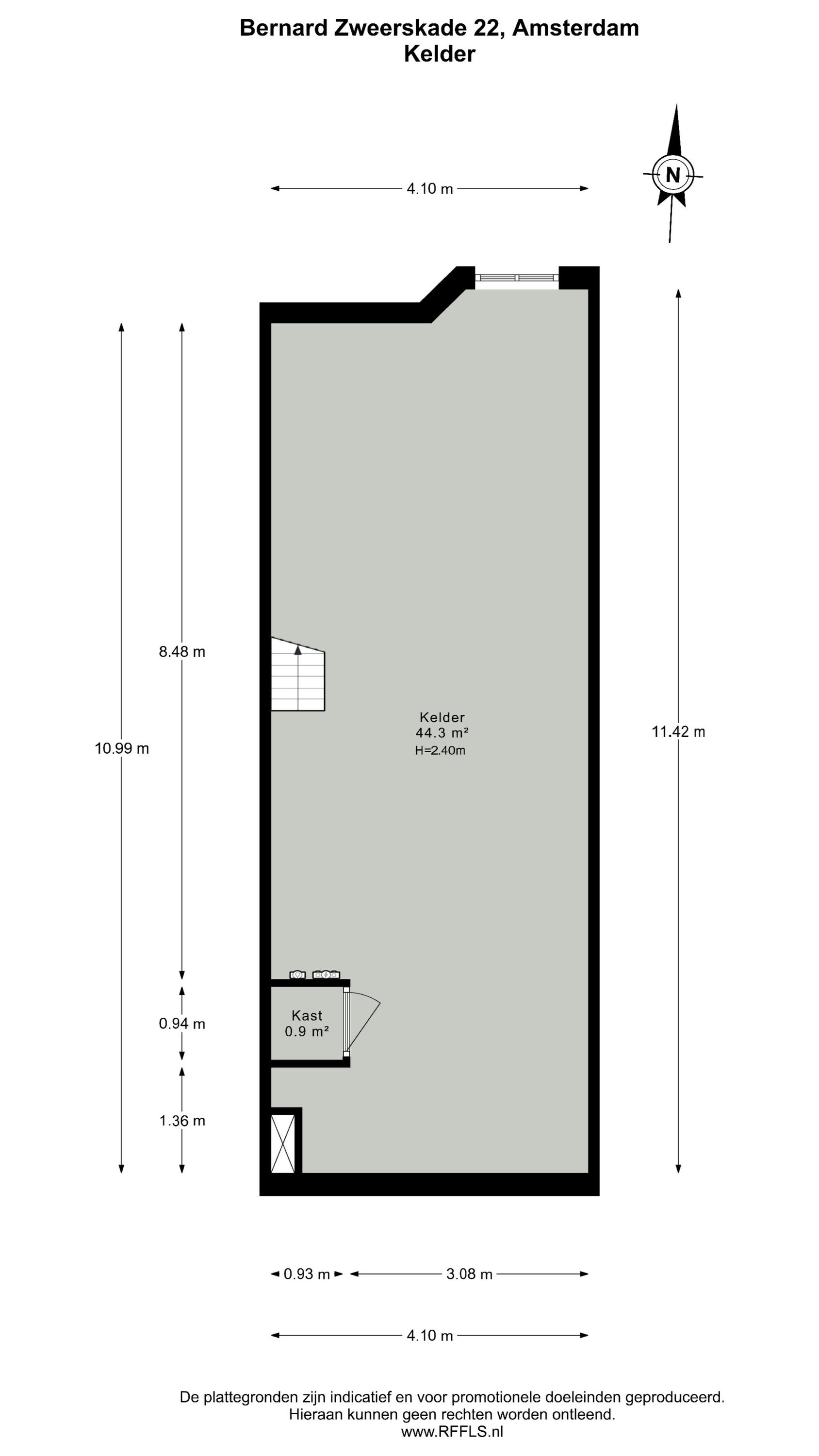
The property already has a basement of approximately 46 m².

Key features:
- Living area 113 m² (measured in accordance with NEN2580).
- Indicative living area after carrying out the already permitted works approximately 223 m².
- Permit for enlarging the basement has already been granted and is irrevocable.
- Quotation for the works available from the selling agent.
- Property is in shell condition and requires renovation.
- Ground lease paid off until 30-11-2053.
- Transition to perpetual ground lease already secured under favorable conditions.
- Healthy homeowners’ association (VvE), professionally managed by Delair Vastgoedbeheer.
- Service costs include an advance payment for heating costs.
- “As is, where is” clause applies.

Features

Transfer of ownership
Asking Price
€ 1.400.000 k.k.
Status
beschikbaar
Acceptance
in overleg
Construction
Kind of house
Dubbel benedenhuis
Building type
appartement
Construction period
1931
Energy rating
E
Bedrooms
5
Bathrooms
4
Surface Areas And Volume
Living Area
223 m2
Other indoor space
0 m2
Exterior space attached to the buildinge
12 m2
Volume in cubic meters
1000 m3
Baerz & Co Property Brochure

Brochure

Videos

Heeren Makelaars

Stadionweg 75
1077 SE Amsterdam

info@heerenmakelaars.nl
+31 204702255

www.heerenmakelaars.nl

Information / Viewing request

Steijn Schothorst profile image
Steijn Schothorst
Real Estate Agent

Buying a Luxury Property in Amsterdam

Amsterdam offers a cosmopolitan lifestyle defined by heritage, connectivity, and discreet luxury. Residents benefit from a robust international community, curated services, and vibrant culture. The city’s enduring appeal lies in its blend of history, sophistication, and progressive spirit.